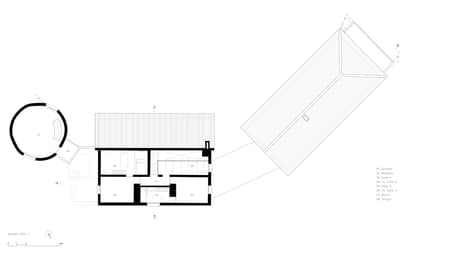
Situated on a steep promontory overlooking the cliffs of Azóia, this architectural intervention stems from the desire for an architecture that fades away to make room for the place. The house dissolves into the topography, merging with the horizon and resonating with the scale of the site. The original construction, composed of a windmill and three interconnected volumes of distinct geometries, revealed complex intersections and a roof with unique slopes, which called for a refined yet precise gesture in the spatial reinterpretation.
The kitchen, previously isolated, was integrated into the social areas, becoming an integral part of daily living and enhancing the connection with the ocean. On the upper floor, the reorganization of the compartments allowed for the transformation of three cramped bedrooms into two generous suites, enhancing comfort, light, and the landscape.
The composition of the façades was redefined, seeking a new formal balance and optimizing the visual relationships with the exterior. The densest intervention occurred in the central volume, replaced by a glass body constructed with high-reflectivity glass. This option allowed for the creation of a silent presence, mirroring the landscape and rendering the architecture invisible.
On the ground floor façades, the cladding was executed with handcrafted, two-dimensional and three-dimensional tiles designed by artist and ceramist MAVC. The rhythmic application of the three-dimensional elements evokes the movement of the ocean, while the blue-green water tones establish a chromatic continuity with the vegetation and the sea. This same principle was transposed to the pool, where the architecture disappears into the material of the site. The roof and upper façades were clad with pigmented lime in the color of Cape stone, reinforcing the tectonic continuity between the house and the ground, between the built and the natural.
Inside, a refined selection of noble materials was chosen, where Macaúbas Blue, a rare and intensely expressive stone, takes on the role of the project’s guiding element. The former multipurpose room was redefined, gaining a new materiality through pink tones extracted from Cape stone, in dialogue with custom-designed carpentry and hydraulic mosaics in a subtle harmony of textures. The entire project is based on the idea of an "architecture of non-assertion," where each decision seeks the essential: the material, the light, the relationship with the place. An architecture that aims to be silent, yet rigorous; that withdraws to reveal the presence of the sea, the sky, the cliff. Where the house does not impose itself, but remains.

















































