The word house functions as both a verb and a noun. To house is a transitive verb, which requires a direct object to complete its meaning. The purpose of a dwelling is to house an individual or a family, and we cannot separate the act of housing from its object.
This project was an essay on housing, addressing both its function and its object, for a returning client who already had a concept of “home” even before purchasing the land to build it. ARO Spaces was seeking cost-effective housing with flexible typologies that could adapt to today’s diverse family structures and accommodate various uses, such as a home office or multiple generations living together.
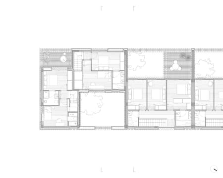
In simple terms, we explored the idea of an apartment building laid out horizontally rather than vertically, achieving the economy of scale of collective housing while maintaining a direct connection to a garden, as in a traditional house.
In Portugal, the townhouse typology is common only in Porto, where it shaped the city’s expansion at the end of the 18th century under the British influence of the Port wine trade. We wanted to replicate the logic of this dense, low-rise city, so we designed a contemporary reinterpretation of the townhouse: affordable and flexible.
Working within the constraints of design and a limited budget, we moved away from the city center and found a quiet neighborhood, where each house nonetheless has its own time, scale, and personality. The project aimed to define the block as a way of framing and enhancing the quality of the entire street, while fostering a sense of communal life.
We researched industrial and low-maintenance elements that could be reimagined, such as white brick, which provided consistency across shading devices, ventilation systems, windows, stairs, exterior paving, and cladding. Exposed brickwork is not a common façade element in southern Portugal, where rendered or whitewashed surfaces dominate. Introducing this material, so archetypal in townhouse projects elsewhere, we aimed to bring a locally uncommon, yet timeless, expression to the project.
The seven houses were designed around patios that create intimacy and ensure comfort in the daily use of diverse outdoor spaces. The gardens use local and climate-adapted vegetation, focusing on shade, wind protection, and inspiring an outdoor lifestyle for each unit. All the social areas are at street level, with bedrooms on the upper floor. The gardens connect directly to a multifunctional ground floor, open to leisure, work, or relaxed living.
In the end, unlike an apartment building, where dwellings are identified by random combinations of numbers and letters, these houses are known by the names of the people who live in them.






















