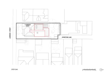
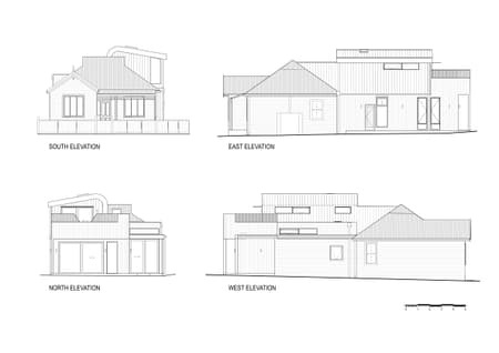
Peeking out above a 1915 Edwardian cottage sits a white curved shell, a contemporary extension to a weatherboard home in a well-preserved heritage pocket in Seddon. Cereus House brings light, height and flow to the existing dwelling through the addition of two curved forms that overlook the north-facing backyard. This project brings an old house to modern day standards, showing that with a little TLC, an old home can be thermally comfortable and solid.
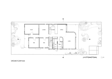
The clients wanted a bright space and to feel a sense of lightness with a connection to outside. The space needed to accommodate ample space for working from home, be a sanctuary to retreat to, and connect to the couple’s property behind for when family and friends visit. A part of the brief was to retain an oversized flowering cereus cactus on the eastern side of the backyard. The new extension nudges close to the cactus, whose top can also be seen from the balcony
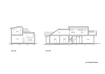
The key driver was to create bright and flowing volumes as a contrast to the existing heritage home. Using a common 1m radius, the ground floor extension curves gently in plan, while the upper white shell curves in section. Curves are used to soften the interior spaces, allowing the living space to flow on from the kitchen, and the deck to flow into the backyard.
The upper white shell is a contrast to the Edwardian roof line. Curved rafters normally used for bullnose verandahs are scaled up and re-imagined in the roof structure, and exposed like ribs in the ceiling
The ceiling over the living area is lower to accommodate the balcony above, and also define different living zones that are connected but distinct. Separate spaces are created for different modes of working; a secluded office is located in the in the front of the house where it is quietest, and a bright studio upstairs has access to attic storage and a large upstairs deck nestled in the tree line.
A small apertu
The clients love books, so a leftover space next to the stairwell was used to integrate a solid blackbutt bookcase into the staircase
The existing 109 year home was stripped, insulated and doubled glazed. The floor of the weatherboard house was completely replaced, and a concrete slab with hand dug footings was poured from the inside to ensure structural integrity, better thermal mass, and longevity for both old and new parts of the home.
Passive design principles are used - the balcony acts as an eave over the north-facing windows, and cross ventilation allows good air flow in the key living areas. On a hot day, the house feels well shaded and cool,
The extension needed to be distinct from the existing house, and the existing roof needed to be viewed as intact. This proved a challenge as the clients’ wished to access the attic from upstairs, and to do so required the upper floor to disrupt to the existing roof form. This was achieved by a low walkway that connects new and old, which is set below the existing ridge line so it not visible from the street.








































