Located 30 kilometers from Pune at Dhamane, the site is nestled in the hilly backdrop of the Sahyadri mountain ranges. The solitary plot is a part of the rugged terrain at the foothills. The Kirloskar Corporate family aims to create a new set of enterprising managers for the country and hence promoted the Kirloskar Institute of Advanced Management Studies. The campus, apart from educating students to become future managers, also imparts training programs to mid and senior-level management personnel sponsored by industries.
Simple Cartesian planning, minimal modernist use of materials, and keen focus on functionality in a regional context make the campus a cohesively planned institute that is created solely for the benefit of its inhabitants -students. The various levels on campus cause the line of sight to gradually widen or narrow down as the grandeur of mountain ranges and the built environment are sequentially revealed and concealed as one walks around this temple of education. Courtyards and corridors become interactive spaces. Pockets of spaces and interiors of structures are washed in optimum, comfortable daylight, a feat achieved with an inherent methodology of climatic considerations while designing.
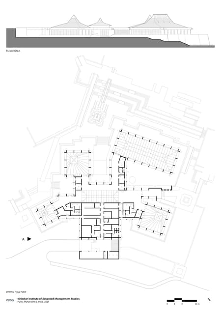
The campus can be divided into three wings: academic, residential, and the green spine separating the two. As one approaches from a distance, this campus, several lofty turrets rise over the landscape, crowning the stark concrete blocks, adorned with earth coloured galvalume sheets. The highlight of this campus is these uniquely designed pitched roofs covered by Kalzip aluminum roofing sheets that draw influence from many pagodas of the East Asian temple complexes.
On reaching a subtle campus entrance at a higher contour that gently slopes into a semi-covered atrium framed by offices of the administration, classrooms, seminar halls, and library spread over ground and first floor levels. This large courtyard hosts annual convocation functions and public lectures while becoming a discussion area on regular days.
A central dining hall and kitchen that serves all the inhabitants of the campus separates the academic area. The dining hall has three chambers that include a large dining hall for about 200 graduate students, along with two smaller halls for executives and faculty. All the halls are connected to a central pre-function area, connected to the kitchen and restrooms. Polished Kota stone flooring, holding vertically transparent glass walls, opens the dining halls onto the valleys and various courtyards. The pitched roof internally held by ceramic ceiling sheets mimics wooden panels, bringing that warmth to the casual dining activity.
A series of large and small courtyards connected by ramps and steps, punctuated by concrete mural walls, divide and connect the three distinct parts of the campus: the academic area, the dining area, and the residential area. The residential area accommodates students and senior managers who visit for short-term training in various hostels. Rooms are connected by corridors onto which the wet cores open up for occasional servicing, while externally opening to the various courtyards.
The institute is intimate in scale yet spatially open, unfurling in synchrony with the existing natural elements, the flora, the earth, and the distant landscape. This orchestration of various functional units of the campus with a series of courtyards and walkways evolved from the natural contours, making this campus a perfectly planned intervention of the human effort to design with nature.






















