Fasano BH Hotel is born from the mixture of influences typically from Minas Gerais with the sophisticated simplicity that its brand offers, both to corporate visitors and to those who come for tourism. From the ambiances of Minas Gerais’ historic cities to a palette of colors and textures that crosses the terracotta of the clay vases, the copper of the sweet pots and the patina of the colonial furniture, its architecture is characterized by care, combining the rusticity of Minas Gerais with a legitimate attitude. contemporary and urban.
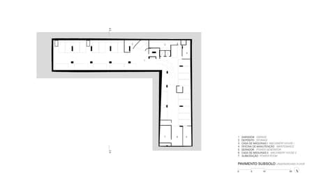
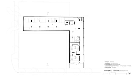
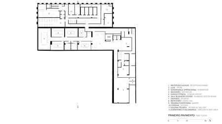
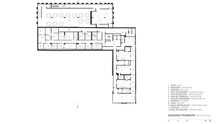
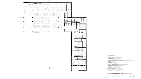
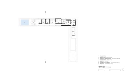
Located in the Lourdes neighborhood, renowned for its high standard of gastronomy and commerce, the hotel was designed on the structure of a building that was already on the ground and that connects two streets, forming an "L". A neighboring site was attached to the hotel allowing the creation of a lobby with imposing height and natural lighting. Its entrance is made along a wall perforated in clay bricks and slightly inclined to the interior of the land, inviting guests and the general public to enjoy the Gero Restaurant and events at the Baretto Bar.
Corten aluminum sheets, which alternate on perforated and smooth surfaces, cover and give unity to the existing structure. The slope of those that form the windows of the rooms and circulations give greater rhythm and depth to the facades. The hotel's interiors combine the sophistication of the Fasano brand with elements that recall the colonial past of Minas Gerais, without giving up comfort and quality. Looms, brut wood, patinas, soapstone, exposed bricks, and other traditional materials join pieces by Bernardes Arquitetura and Brazilian designers from different eras to offer a timeless environment, albeit profoundly influenced by the rich local repertoire.























