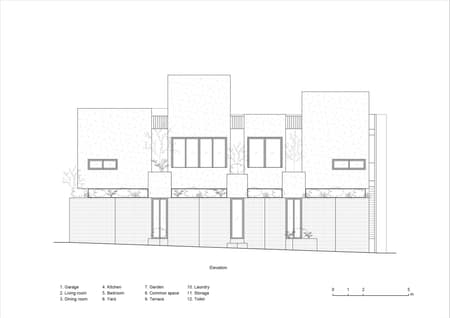
The project is situated on a 5×20 meter plot at the intersection of two narrow alleys—an uncommon condition within the typical urban tube-house fabric. The advantage of having two open façades allows for effective use of natural light and ventilation, while simultaneously requiring careful control of sightlines to ensure privacy. In an increasingly dense urban context, where land becomes scarce and buildings press tightly against one another, daily life is often compressed within enclosed volumes. The house is therefore not merely a shelter, but a space that creates openings for people to truly breathe. From this perspective, the "void" became the central concept shaping The Gap House.
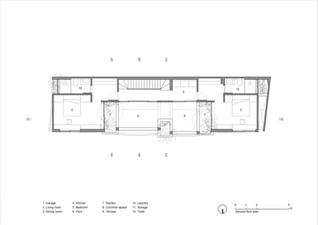
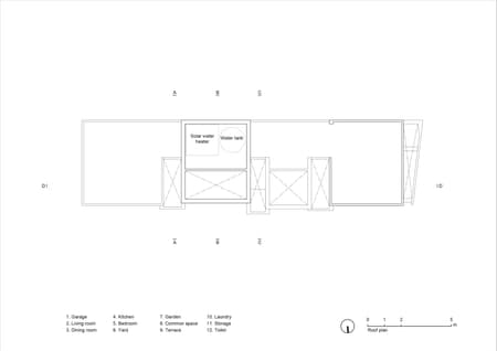
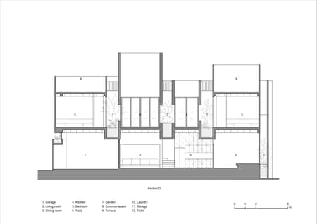
Beyond accommodating basic functional needs, the challenge was not simply to introduce an empty space in form. The essential question was how this void could operate as a genuine living environment—one that fosters comfort, connection, and relaxation. Through careful study of the local microclimate and surrounding context, a large void was positioned at the center of the second floor, linked to a system of vertical tubular skylights extending through the building. These skylights do more than provide daylight; they function as natural ventilation shafts, capturing breezes, mitigating direct solar gain, and improving thermal comfort. As a result, the spaces below remain cool and well-ventilated and are well-suited to the tropical climate.
The building mass is organized through principles of interlocking and layering, generating a deliberate interplay between solid and void. Each opening and enclosure is precisely positioned to balance privacy with optimal daylighting and cross-ventilation. This equilibrium prevents the house from appearing as a heavy, sealed block; instead, it emerges as a rhythmic structure capable of "breathing" and adapting to its environment.
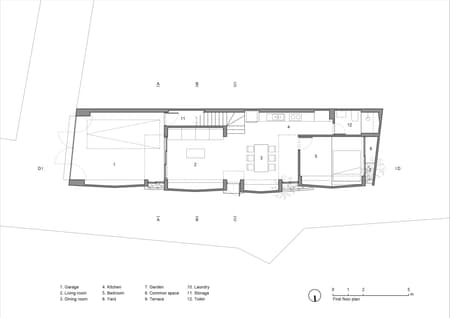
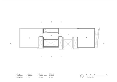
The spatial sequence unfolds through an alternating rhythm of communal and private zones. Upon entry, one encounters the shared living area comprising the living room and kitchen; beyond it lie the more intimate sleeping spaces. Moving vertically, the staircase leads to a large central courtyard—an expanded communal space that acts as the "heart" of the house—while private bedrooms are located at both ends. This organization of shared–private–shared–private spaces creates a layered spatial experience in which degrees of interaction are flexibly moderated. Such a configuration strengthens family connections while preserving moments of solitude. In the contemporary urban context, where lifestyles tend to become increasingly enclosed, creating intermediary spaces that encourage interaction and engagement with light and breeze is more essential than ever.
In terms of materiality, dark-toned natural stone serves as the primary finish, evoking a sense of groundedness and durability. The inherent variation in the stone's color produces subtly shifting surfaces rich in visual depth. The ground floor employs deeper tones to convey stability and solidity, while the upper levels are treated with lighter hues, giving the building a more refined and airy presence. The spatial experience is thus guided vertically—from the subdued, grounded atmosphere below to the brighter central courtyard above, where light and wind become defining elements of everyday life.













































