. Kangan Institute's Health and Community Centre of Excellence is a transformative initiative that underscores the significance of contemporary Health and Community training and education. This building marks a significant first step in the revitalisation of Kangan's Broadmeadows campus. It creates welcoming learning environments that celebrate caring and nursing vocations, igniting the passion of students embarking on their studies in the caring professions.
The architectural form emerges from a thorough investigation of function and setting. It is scaled appropriately to harmonise with the adjacent Broadmeadows Central and the nearby civic heart, opening itself to the Town Park, a landscaped entry that provides a safe and inviting approach to the existing campus and its main pedestrian circulation axis.
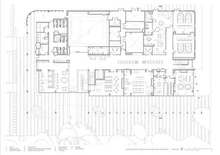
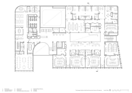
The planning is arranged in two halves placed on either side of a central circulation spine and atria that commences at the park-facing entrance atrium. A rational, cost-effective structural grid allows for flexibility and adaptability throughout its lifespan. The learning spaces are engaging and interactive industry simulation environments catering to nursing, pathology, disability support, residential care, and early childhood education. Each space embraces virtual learning, incorporating digital technologies, and enabling simulation of complex or potentially hazardous situations. These spaces, alongside formal and informal learning spaces, are distributed over three levels connected by light-filled atria.
The staggered triple-height volumes encourage exploration and social interaction, facilitating vertical connections throughout the building. Simulation spaces are visible from both the atria and the exterior, putting the learning experience on display for students and the public alike.
The building's south façade is characterised by transparency and warmth, featuring floor-to-ceiling glazing that maximises views over the Town Park while celebrating Health and Community training along Pearcedale Parade. The ground-floor colonnade seamlessly connects with the landscape, transitioning through a series of island gardens that enhance the relationship with the Town Park.
Conversely, the north and west façades are adorned with tall, slim windows set within a deep, solid, and thermally robust masonry form. This strategy provides solar protection while reflecting the building's purpose. Rooms on these façades accommodate focused work and specialist learning spaces that require diffused natural light. The masonry façade is a tribute to Broadmeadows' evolving civic, institutional, and residential context. The curvature and articulation of the brickwork impart fluidity, warmth, and softness, drawing inspiration from the topography of the Yuroke and Moonee Ponds Creek.


.jpg?w=450&q=75&dpl=dpl_94TsexuRDUkra7f5K7qQDy7gfz8a)

.jpg?w=450&q=75&dpl=dpl_94TsexuRDUkra7f5K7qQDy7gfz8a)









.jpg?w=450&q=75&dpl=dpl_94TsexuRDUkra7f5K7qQDy7gfz8a)





