Tokamachi is an area of severe wilderness where cold air from the land and warm currents from the Sea of Japan collide with the Echigo Sanzan mountains, resulting in a lot of snowfall. In Tokamachi, a traditional event called "Honyara-do" has been passed down from generation to generation. "Honyara-do" is where everyone gathers to eat, play, enjoy, and learn, a scene that has continued in this area for a long time. The new school building is a place like "Honyara-do" that is "regardless of the season."
In winter, there is a lot of snow. The unique external environment of a region with heavy snowfall is combined with children's playing and learning to create a more enriched play environment for the children. A balcony surrounds the main building, and a slope is planned for sledding when snow falls and grass slides at other times of the year. In addition, a large, flexible pilotis was created as a place where children can play outside in various ways regardless of the season or climate. We designed an environment where children can practice and challenge various play activities harmoniously with the external environment throughout the four seasons.
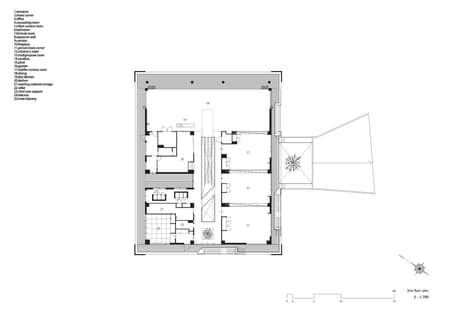
In the interior, we designed various spaces and mechanisms to induce children to play and learn in various ways. Even during the snowy season when it is impossible to engage in outside activities, a spacious playroom for various activities and a corridor for circulation are provided to ensure sufficient physical activity for children, and an atelier space and picture book space allow for creative play and learning. In other areas, children can choose their own play space from various spaces with elements such as a fireplace, water tank wall, and kids' kitchen, and the school is designed to nurture children's initiative through play.


















