Under rapid urbanization, cities in Vietnam have diverged far from their origins as sprawling tropical forests. The lack of green causes various social problems such as air pollution due to the over-abundance of motorbikes, air pollution, flood, and the heat island effect. In this context, new generations in urban areas are losing their connection with nature. Moreover, the country is facing changes as it moves to a manufacturing-based economy, taking its toll on the environment. Increased droughts, floods, and salinization jeopardize food supplies.
“Urban Farming Office", is an effort to change this situation. The aim of the project is to return green space to the city and promote safe food production. Located in a newly developed area in Ho Chi Minh City, the office project demonstrates the possibility of vertical urban farming. Its facade consists of hung planter boxes with various local vegetation, allowing them to obtain sufficient sunlight. This green approach will provide safe food and a comfortable environment with minimum energy consumption, contributing to the sustainable future of the city.
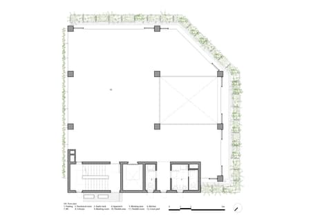
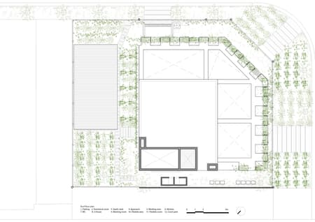
Environmental strategies - The “vertical farm” creates a comfortable microclimate throughout the building. Combined with glazing, the vegetation filters direct sunlight and purifies the air. It is irrigated with stored rainwater while evaporation cools the air. Conversely, the northern wall is relatively solid for future extension, with small openings to enhance cross ventilation. It is made of a double-layered brick wall with an air layer inside for better insulation properties. All of these contributes to reducing the use of air conditioner.
Farming system - The “vertical farm” is designed for vegetation with a simple construction method- it consists of a concrete structure, steel supports, and modularized planter boxes hung there. Planter boxes are replaceable, therefore they can be flexibly arranged in accordance with the height and growing condition of plants, providing sufficient sunlight. Together with a roof garden and ground, the system provides up to 190% of the green ratio to the site area, which is equivalent to 1.1 tons of harvest. Various local edible plants, such as vegetables, herbs, and fruit trees, are selected to contribute to the biodiversity of the region. They are maintained with an organic treatment method.
































