Inverted House / Okrokana,
Tbilisi This single-family residence in Okrokana reinterprets the fence-dominated suburban fabric of Tbilisi through an inward-looking typology, transforming the house itself into a protective perimeter that generates light, privacy, and spatial generosity from within.
Located in a hillside residential area on the outskirts of the city, the site is part of a neighborhood characterized by narrow streets, small plots, and tall perimeter fences. Although Okrokana is considered a prestigious district due to its elevated position above Tbilisi, its spatial reality is often defined by enclosure rather than openness. The plot was surrounded on three sides by neighboring walls and bordered by the street on the fourth, resulting in a complete lack of outward views and limited daylight access.
Rather than attempting to open the house toward its constrained surroundings, the project approached these conditions as an opportunity to propose an alternative residential model. The house was conceived as an “inverted house,” a typology that reverses the conventional relationship between dwelling and enclosure. Instead of placing the building behind a fence, the architecture itself becomes the perimeter. The house wraps around the site, enclosing it and directing all primary spaces inward.
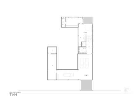
Along the street, the building is slightly recessed, eliminating the need for a separate fence and softening the boundary between public and private space. The spatial organization is structured around two gardens: an inner courtyard that functions as the true heart of the house, and an outer garden that mediates its relationship with the street.
The main living spaces—entrance hall, living room, and kitchen—are oriented toward the inner courtyard, transforming it into an open-air central hall. A suspended swimming pool spans across this void, creating a covered outdoor space below while visually connecting the upper levels. Sectionally, the building rises to three floors at the rear and appears as a single-story volume toward the street. This variation allows for a double-height living area and the insertion of intermediate half-levels, generating a gradual and fluid spatial sequence.
Materiality reinforces the project’s inverted logic. The façade facing the street is clad in charred wood, a traditional technique historically used to protect timber from weathering. Here, it forms a dense and protective outer shell. Inside the courtyard, this dark envelope gives way to natural, untreated wood, introducing warmth, texture, and tactility. The interior spaces are finished entirely in white, allowing light, proportion, and spatial relationships to define the atmosphere. This gradual transition—from charred wood to natural timber to abstract white—creates a sequence of spatial dematerialization, emphasizing the movement from exterior to inner core.
By redefining the role of the fence as inhabitable architecture, the project proposes a new domestic typology for dense suburban conditions. Rather than resisting its constraints, the house internalizes them, transforming enclosure into a spatial asset. Through its inward orientation, layered organization, and material transitions, the project constructs a protected yet expansive domestic world—one that builds its richness from within.

.jpg?w=450&q=75&dpl=dpl_HDjb5cDYpmLbyDKZrmWcbHjDaquY)
.jpg?w=450&q=75&dpl=dpl_HDjb5cDYpmLbyDKZrmWcbHjDaquY)
.jpg?w=450&q=75&dpl=dpl_HDjb5cDYpmLbyDKZrmWcbHjDaquY)
.jpg?w=450&q=75&dpl=dpl_HDjb5cDYpmLbyDKZrmWcbHjDaquY)
.jpg?w=450&q=75&dpl=dpl_HDjb5cDYpmLbyDKZrmWcbHjDaquY)
.jpg?w=450&q=75&dpl=dpl_HDjb5cDYpmLbyDKZrmWcbHjDaquY)
.jpg?w=450&q=75&dpl=dpl_HDjb5cDYpmLbyDKZrmWcbHjDaquY)
.jpg?w=450&q=75&dpl=dpl_HDjb5cDYpmLbyDKZrmWcbHjDaquY)
.jpg?w=450&q=75&dpl=dpl_HDjb5cDYpmLbyDKZrmWcbHjDaquY)
.jpg?w=450&q=75&dpl=dpl_HDjb5cDYpmLbyDKZrmWcbHjDaquY)
.jpg?w=450&q=75&dpl=dpl_HDjb5cDYpmLbyDKZrmWcbHjDaquY)
.jpg?w=450&q=75&dpl=dpl_HDjb5cDYpmLbyDKZrmWcbHjDaquY)
.jpg?w=450&q=75&dpl=dpl_HDjb5cDYpmLbyDKZrmWcbHjDaquY)
.jpg?w=450&q=75&dpl=dpl_HDjb5cDYpmLbyDKZrmWcbHjDaquY)



