Beijing Normal University at Zhuhai (BNU Zhuhai), is an important component of the construction of "a comprehensive, research-oriented, world-class university with Chinese characteristics and leading teacher education" and is a southern campus of the same level as the Beijing campus, both of which are planned, progressed and presented as one university, in accordance with the university's development strategy of "One University, Two Campuses" and the principle of "High Standard, New Mechanism and Internationalization". Since 2019, amid the campus transformation and low-carbon development, the university has undertaken renovations of its existing buildings.The successful renovation of the Yuanbo Building is one of these key projects.
Yuanbo Building is an existing structure on the Campus. As the campus has developed, the building's external appearance and internal functions no longer meet the current needs. The renovation adds a rooftop corridor and track, creating a continuous pathway that connects 15 individual cubes and transforms the rooftop into a space for engaging with nature. The redesign also creates diverse interaction areas, turning the building into a "behavioral catalyst" that supports the educational model of the School of Future Design, focusing on the connection between people, nature, and interactions.
Taking advantage of its unique geographical advantage of proximity to Hong Kong and Macao and its innovation strengths, Zhuhai Campus aims to build a southern highland for the training of excellent teachers, especially teachers in disciplines urgently needed by the country, a base for training talents to strengthen the rallying power of Hong Kong and Macao and to serve the "Belt and Road Initiative", an advanced innovative center for education, and an incubation hub for emerging and interdisciplinary fields.
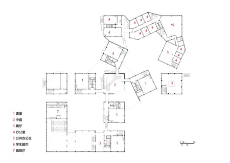
The campus is renowned as the "Most Beautiful Valley University in Asia," situated on the northern foot-hills of Phoenix Mountain, just 6 kilometers from the sea. Yuanbo Building occupies a key location in the linear plan of the campus. It consists of 15 independent square cubes and has a total of five floors.
Since its completion around 2004, the Yuanbo Building has housed design departments. Over time, its façade deteriorated, with peeling paint, rusted steel stairs, and neglected outdoor spaces. After renovation, it has become the most attractive part of the campus, with popular outdoor areas and newly integrated spaces like exhibition halls and courtyards supporting the daily activities of the School of Future Design. The renovation design focused on two key issues: (1) How to maximize the use of the existing building within the constraints of planning, budget, and timeline while integrating it into the campus environment and enhancing its vitality? (2) In the era of virtual reality and digital media, how to create spaces that encourage face-to-face interaction, encouraging people to put down their phones and engage with one another?
Facade Renovation Strategy under Time and Budget Constraints. 1 - The "skin-over-skin" approach was used to create a minimal disturbance while enhancing the building's external appearance. Without damaging the original facade and roof materials, a dry-hanging brick wall system and GRC cladding were added to give the building a new red-and-white "skin." The top of the central white box was partially fitted with U-glass, becoming the focal point and high point of the complex, transforming the chaotic Yuanbo Building cluster into a cohesive, centered entity. The outer facades feature red brick cladding with white grid accents, echoing the surrounding red brick buildings on campus. 2. Strengthening and Repeating Form Motifs to Enrich Cultural Identity - There was a 3F platform connecting the middle cubes. Under the platform was a rectangular structure as the main entrance. By expanding the platform, a bigger entrance with a better sense of wholeness was created. The new triangle scuttles on the platform lead sunlight inside the dark entrance space. "
Behavioral Catalyst" Aligned with the New Educational Model. In the words of German philosopher Jaspers, education is like one tree shaking another, one cloud pushing another, and one soul calling another. Harvard University President Drew Faust believes that the interactions and exchanges of ideas between individuals in a university are essential elements of higher education. Amid the digital era, this project seeks to reconnect design education with humanity and nature, fostering connections between individuals and the environment. We believe the true charm of a building lies not in the structure itself, but in the possibilities it creates.
1. "Cube within a Cube": Space Regeneration and Ecological Transformation of the Central Box. The central cube was originally an open space overrun with weeds. After renovation, a glass roof was added, transforming it into an enclosed grey space. A stair system was introduced, connecting multiple levels and incorporating large steps on the ground floor, making the staircase both a circulation and activity space. Now, the space serves as a venue for various events, such as concerts, fashion shows, and graduation exhibitions, fostering endless possibilities for the entire campus community. 2." Gardens within Courtyards": A Square and a Circle, Creating Interdisciplinary Spaces for the Entire Campus - The two courtyards, initially passive voids, were redesigned into a square and a circle. The square courtyard features red brick seating around a preserved phoenix tree, while the circular courtyard includes a sunken stage, becoming the core space. The existing paths were reworked to create multiple entry points, inviting students and faculty into the courtyards, and transforming them into vibrant campus hubs. Today, the square and circular courtyards host creative markets, cultural performances, and other events. 3."Seeing and Being Seen": Outdoor Corridors and Stairs Creating Encounter Spaces - By reconfiguring the outdoor corridors and stairs, the design enhances connectivity and creates opportunities for interaction. The dynamic play of light and shadow makes these spaces popular for students to gather, while also serving as a source of inspiration for artistic creation. 4. Interior Function Integration - To meet the needs of the new teaching model, the interior spaces were integrated and redesigned. The two large auditorium classrooms on the ground floor were combined into a single, multifunctional exhibition hall, with large steps incorporated to create a versatile space for exhibitions and events.
Unifying the Building Through a Continuous Pathway. 1. Dragon of calligraphy: A continuous 3D loop between mountains and lakes - Yuanbo Building is named after Qi Gong, who was a famous calligrapher and educator, as well as a professor at the university. The old building consisted of 15 separate cubes. Originally, there were outdoor corridors and stairs between the cubes, but they didn't connect all the cubes, leaving broken paths with inconsistent flow. In the renovation, inspired by the fluidity and spirit of Qi Gong's calligraphy, new corridors and tracks were added to connect the broken paths, creating a seamless, three-dimensional pathway linking the roof and ground. Positioned with mountains to the back and water in front, the "Ink and Brush Dragon" pathway integrates harmoniously with the site's natural ambiance, offering various perspectives to experience nature. The rooftop corridors are wrapped in perforated aluminum panels, illuminated at night, resembling a flowing dragon. Existing rooftop equipment and shafts are concealed with grilles, and areas are enhanced with lawn or wooden platforms, creating functional spaces that encourage diverse activities. 2. Blending Old and New: Creating an Artistic Pathway - The Yuanbo Building's elevated main level had limited access via two narrow stone paths. The renovation widened the paths by combining a new red brick path and the existing stone path, adding platforms and seating with lighting to create welcoming spaces. These paths now integrate with the campus circulation and serve as a venue for art students' outdoor reviews and exhibitions.
Renovation Strategies for Campus Buildings Aligned with Carbon Neutrality Goals - Yuanbo Building is a key part of the green renovation series at BNU Zhuhai. The project follows carbon neutrality goals throughout the design and operational phases, taking into account the building's existing condition, budget, and timeline. It employs practical strategies to reduce carbon emissions in four areas: energy, construction, operation, and education, setting a benchmark for sustainable campus buildings. Energy: High-efficiency air conditioning and operable windows allow natural ventilation during transitional seasons, reducing overall energy consumption. Construction: Openings were added at the base of the central cube to enhance ventilation along the prevailing wind path, creating a pleasant microclimate. A new skylight was introduced to provide usable indoor space and facilitate side ventilation, generating a wind-drawing effect. The façade incorporates various shading methods, such as grilles and window frames, customized for different building functions and orientations. These modifications reduce direct sunlight and lower cooling energy consumption in summer. The inner courtyard and surrounding areas retain many existing trees, preserving their carbon sequestration capacity. These strategies are cost-effective, balancing energy efficiency, functionality, and aesthetics. Operation: Water-efficient fixtures were installed, and landscaping uses water-saving irrigation. Indoor and outdoor study spaces leverage natural light and ventilation to reduce energy use. Education: The renovated Yuanbo Building is open to all, serving as a model for low-carbon design and raising awareness. As graduates move on to teaching roles nationwide, they spread the principles of sustainability.
Designing for a Better Future: Shaping Rural Aesthetic Education - After renovation, the Yuanbo Building serves as the teaching building for the School of Future Design at BNU. School of Future Design, based on the existing strengths of Beijing Normal University, is rooted in the intersection of art, technology, and education. It aligns with the overall framework goals of the university's "14th Five-Year Plan" development and construction. The School is dedicated to advancing the discipline of design with a focus on "design for a better future." The School engages in research and extensive interdisciplinary collaboration in the fields of humanities, art, design, and technology. Students from diverse backgrounds come here to receive education and become future teachers. After graduation, they return to their hometowns to share their knowledge and inspire others. With the rise of the School of Future Arts housed within The Yuanbo Building, the graduates are equipped with the skills and motivation to contribute to rural education development. By providing a supportive and conducive environment, Yuanbo Building instills in our graduates a sense of duty and responsibility toward uplifting rural communities through education. As part of BNU's "Future Design Seed Fund," the "Art Education Program for Children in Difficulty" project focuses on rural areas with scarce educational resources. The project involves professionals guiding rural children to combine their everyday lives, cultural traditions, and new art perspectives through pilot education programs. This aims to fill the gap in aesthetic education in rural areas, fostering children's observation, perception, and empathy. The initiative also collaborates with artists and educators to explore the path of aesthetic education for disadvantaged children. The Yuanbo Building project has been warmly embraced by students and faculty both inside and outside the campus, setting a benchmark for campus development. It has become a model for the renovation of existing buildings, focusing on ubiquitous learning and carbon-neutral goals in educational architecture.
.jpg?w=450&q=75&dpl=dpl_6NKhQbYoNKZ4YGsW1tKTDHjTc7uH)
.jpg?w=450&q=75&dpl=dpl_6NKhQbYoNKZ4YGsW1tKTDHjTc7uH)
.jpg?w=450&q=75&dpl=dpl_6NKhQbYoNKZ4YGsW1tKTDHjTc7uH)
.jpg?w=450&q=75&dpl=dpl_6NKhQbYoNKZ4YGsW1tKTDHjTc7uH)

.jpg?w=450&q=75&dpl=dpl_6NKhQbYoNKZ4YGsW1tKTDHjTc7uH)
.jpg?w=450&q=75&dpl=dpl_6NKhQbYoNKZ4YGsW1tKTDHjTc7uH)
.jpg?w=450&q=75&dpl=dpl_6NKhQbYoNKZ4YGsW1tKTDHjTc7uH)
.jpg?w=450&q=75&dpl=dpl_6NKhQbYoNKZ4YGsW1tKTDHjTc7uH)

.jpg?w=450&q=75&dpl=dpl_6NKhQbYoNKZ4YGsW1tKTDHjTc7uH)
.jpg?w=450&q=75&dpl=dpl_6NKhQbYoNKZ4YGsW1tKTDHjTc7uH)
.jpg?w=450&q=75&dpl=dpl_6NKhQbYoNKZ4YGsW1tKTDHjTc7uH)

.jpg?w=450&q=75&dpl=dpl_6NKhQbYoNKZ4YGsW1tKTDHjTc7uH)
.jpg?w=450&q=75&dpl=dpl_6NKhQbYoNKZ4YGsW1tKTDHjTc7uH)
.jpg?w=450&q=75&dpl=dpl_6NKhQbYoNKZ4YGsW1tKTDHjTc7uH)








