A new modern, trapezoidal office building now occupies an approximately 6000-square-metre corner plot between Frankfurter Allee and Buchberger Strasse in the Berlin district of Lichtenberg. The building has a green inner courtyard and an expressive rust-red clinker brick façade whose materiality and colour refer to historical industrial buildings from the beginning of the 20th century and set up an emphatic new contrast with the otherwise postmodern architecture of surrounding buildings from the GDR era.
Impressive for its tactile quality and detailing, the façade is visually divided in two by a change in the pattern of the windows and the structure of the clinker bricks. The building’s plinth comprises the ground floor and the first floor. The linear, horizontal clinker brick relief here calls to mind Expressionist architecture. The window elements are positioned one above the other; the corners of the plinth have no openings. The entrances seem two-storey. Large-format house numbers ensure that the building’s address is clearly visible from afar. The clinker brick structure of the storeys above the plinth is predominantly smooth. Here individual clinker bricks with convex textured surfaces created by coal firing and arranged in irregular patterns stand out from the smooth surface and form exciting accents, particularly when the sun is at different angles and changes in the light create different moods. The floor-by-floor shifting of the individual, floor-to-ceiling window elements around a grid field creates a unique façade dynamic. The corners of the building are glazed following the rhythm of the grid.
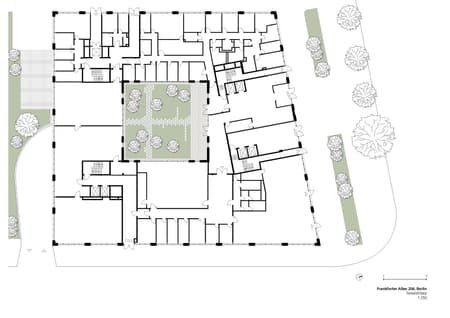
Seven storeys high and made from reinforced concrete, the building has a single-storey underground car park. The building’s horizontal top is a partly landscaped flat roof, which functions as a retention roof capable of storing water. A roof terrace with panoramic views towards Frankfurter Tor and the Berlin Television Tower can be used for events. The landscaped square inner courtyard has seating and a pavilion.
The office areas are accessed via two entrances from Frankfurter Allee and one from Buchberger Strasse. The ground floor contains public areas belonging to the main tenant, office space, and a delivery and waste-disposal area. To achieve a high degree of flexibility of use on the upper floors, each floor has been given four user units. Each user unit has its supply core, which is located close to the stairwell in each case. The underground car park has an access ramp at the rear of the building and provides sufficient car and bicycle parking spaces. Additional bicycle parking spaces are located on the grounds and in front of the building. This project has received gold certification from the German Sustainable Building Council (DGNB).











































