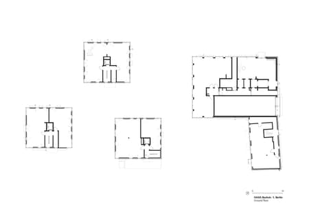
The Hansaviertel in Berlin's Tiergarten district was built in the 1950s according to plans by renowned architects as an urban landscape in which solitary houses alternate embedded in green spaces. Today, the district is one of the world's largest ensemble monuments of " New Objectivity " and post-war modernism. The new residential complex "Oasis" was created in the spirit of the original design idea of the quarter and consists of a high-rise building (Tower) with an adjoining three-story apartment building as well as three urban villas (Garden Houses), which were built on a plot near the river Spree of around 5400 sqm designed by landscape architects. The urban design and the preliminary design for the residential tower originally came from Staab Architekten. TCHOBAN VOSS Architekten took over the planning in 2013.
The fifteen-story solitaire "Oasis Tower" with a panoramic view of Berlin's Tiergarten and Zoological Garden is positioned towards Altonaer Strasse and unfolds its largely visible urban effect with its differentiated façade The position of the building, which is monolithically constructed in the reinforced concrete skeleton, mitigates the street noise inside the property. The façade is articulated by horizontal dark grey concrete bands and features opaque and translucent glass panels and glazed corner loggias. The tower offers space for 68 residential units. The building is entered through a spacious two-story lobby.
The three-, four- and five-story "garden houses" designed by TCHOBAN VOSS Architekten are arranged offset to each other in the quiet inner area of the property and are equipped with a total of 24 medium-sized to large flats in an upscale standard. With light-colored façades in a discreet finish, divided by cornice bands of natural stone, all three volumes have generous balconies and floor-to-ceiling panoramic windows or alternating French windows with metal frames. Thanks to the reinforced concrete skeleton construction and the predefined shaft arrangements, the floor plans are variable and allow for individual adaptation of the living spaces. Ceilings and lift shafts are cast in monolithic concrete, while interior walls are constructed in drywall for better flexibility.
On the roof of the apartment building, with its nine business residential units of a maximum of 60 sqm spread over three floors, there is a communal rooftop terrace with urban gardening areas and a view of the park of the quarter. A riverside promenade connects the Oasis quarter with the river Spree. Access is via the landscaped sun deck with various seating and lounging options. A shared, two-story underground car park, which is only available to residents, has space for in total of 104 cars and also offers charging stations for electric cars and bicycles.






























