Koepenicker Strasse is, in terms of architectural history, an important artery between Berlin-Mitte and Kreuzberg. Here rough-and-tumble Berlin can still be experienced today in all its richness of contrast – from turn-of-the-century industrial buildings to the practical functionality of post-war architecture. Here brickwork meets plaster, and metal meets concrete. Coe48 Berlin stands on the corner of Koepenicker Strasse and Wilhelmine-Gemberg-Weg at Koepenicker Strasse 48, directly opposite the Mediaspree business centre. With its emphatic relief and sculptural interplay of bay windows, green terraces, and large window openings the façade strikes a new note amidst the historical ensemble of buildings on this spot while continuing the diverse architectural heritage. The seven-storey building nonchalantly blends into this lively, creative neighbourhood, offering a modern place in which to live or work in the heart of the city.
Concept - The building combines both flexible office and residential spaces. Both parts of the building have their own entrances and access cores. The modern entrance area to the residential building has surfaced in exposed concrete, which contrasts with the bright pink wall opposite holding the letterboxes. This space is embellished by a neon light installation by the Berlin artist Anna Nezhnaya.
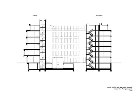
The rear-ventilated façade in the office part of the building is made of sand-coloured architectural concrete structured by vertical supports which, depending on how the light falls and the time of day, bring the façade to life in a special way. The apartment block is lighter in colour. With its cubic-geometric grid, smooth Alucobond façade, and large windows, it stands out sharply from the business part of the building. Variously implemented bay windows and balconies interplay with the façade rhythm, creating further excitement. The set-back top storey provides space for terraces. All the building's roofs have abundant greenery.
Living or working - The areas planned as offices, which are located in the south-west part of the building, offer flexible room layouts on five upper floors, as well as various utilisation options: If required, these can also be converted into flats to create additional living space in this lively neighbourhood. With a total area of 3000 square metres and ceilings up to 3.80 metres high, the rooms create a comfortable setting in which to live or work. The floor-to-ceiling window fronts, bay windows, and terraces on all floors emphasise the feeling of open space. On the ground floor is a 137-square-metre gastronomy unit with a separate café area, which is helping bring this neighbourhood back to life. Access to the roof terrace is also possible from the office area via the stairwell. The existing 19 rental flats, which are located in the northeast part of the building, are spread over seven full storeys with up to three flats per floor. Each flat has generous expanses of windows and access to private terraces. The landscaped inner courtyard creates a peaceful atmosphere amid the lively urban environment.



































