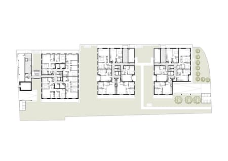
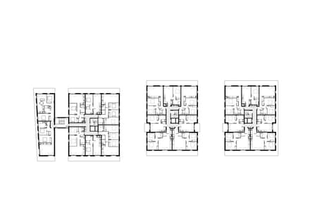
The TAA agency presents one of its recent projects: "Les Herbettes", which involves the construction of 102 collective housing units in three buildings, in the southeastern area of Toulouse (Haute-Garonne, France). Located near the Montaudran train station, the Rangueil campus, and the ring road, the plot is bordered by Avenue des Herbettes to the north and Avenue de Lespinet to the west, along with the Montaudran aeronautics site, placing it within the heritage area. The plot was occupied by a student residence, which was subject to a demolition permit. The shape of the project's plot results from the passage of a Public Equipment Easement, which includes a bus lane and a cycle path. The easement process encroached on the original plot where the student residence was located, creating a new, smaller plot for this project. The site is located in a rapidly changing urban renewal area, close to a Concerted Development Zone, and requires the renovation and development of road infrastructure. The project comprises three similar-sized housing blocks that rise to four floors. At the corner of Avenue des Herbettes and Avenue de Lespinet, the division of the volume allows for a landmark feature at the intersection. The breakdown into multiple volumes scales the project to its context, creates visual breaks between buildings, and provides access to entrance halls. This also enables the creation of dual-aspect apartments.
Context and Demolition - The plot was bordered by Avenue des Herbettes and Avenue de Lespinet. The existing student residence was demolished. Roadwork Project - A roadwork project concerning the bus network and bike lanes must be developed by Toulouse Métropole. Maximum Volume - Plot area = 3,623 m², Maximum building footprint = 1,812 m² (50%), Minimum free space = 362.3 m² (10%), Minimum open ground area = 543.4 m² (15%). Our Project - Three residential blocks with similar dimensions rise to four storeys. At the corner of both Avenues, the fragmentation of the volume highlights the intersection with a distinctive architectural feature. The blocks rest on a landscaped base (semi-underground parking) that is 0.90 m high. Building footprint = 1,562 m², or 42%, Open ground area = 724 m², or 20%. To ensure a certain level of privacy for ground-floor apartments, the semi-subterranean parking creates a base, distancing these units from the street. This base diminishes gradually as it adapts to the slope of the terrain. The project is bichrome, with the base made of natural-coloured concrete and the facades covered in white bricks. All other elements are in one of the two shades. The metal elements are grey, the rainwater downspouts are made of zinc, the undersides of the balconies are in raw concrete, and the joinery is white to maintain sobriety.
The perforated sheet metal balconies run continuously across the entire width of the blocks, forming a striking feature of the project. The transparency of the railings is sufficient to avoid a "claustrophobic" feel while providing privacy for the residents on the balconies by acting as a filter in front of the windows. These large, continuous balconies suggest generous outdoor spaces visible from the street, benefiting the residents. At the intersection of Rue Lespinet and Avenue des Herbettes, the first block is divided into two parts, connected by a footbridge that transforms a fire safety feature into a pleasant communal space, providing access to the entrance hall and all floors. This "gap" stands out with its natural aluminium materiality and full-height openings aligned with the staircase landings. The entrance hall also allows for the transition of level differences thanks to its high ceiling. The ground floor, entirely made of metalwork, gives the building a slender appearance, visible from the ends of both streets. Situated at the bottom of the slope and the corner of the two streets, this part of the building is pivotal in the design of the project.
The project serves as the gateway to the new Montaudran district, currently under construction. Its proximity to the Canal du Midi and the future C-line metro stations places it in a strategic location. From the upper floors, the unobstructed view can offer, depending on the weather, a view of the Pyrenees mountain range. The rear of the block is a single green space, separating the project from the neighbouring plots behind the building. A pedestrian path serves the buildings and crosses the open land area, and tall trees are planted along the path as well as in front of the north facade of the project. The client aimed for an E+/C- certification, delivered by CERQUAL, with the desired performance level targeting a 20% reduction in energy consumption and carbon footprint during both construction and the entire lifecycle. In addition, to reinforced thermal insulation with thicker insulating layers, photovoltaic panels on the roof provide electricity for the common areas.










































