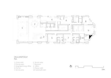
The design of this apartment facing Ipanema beach, in Rio de Janeiro, was designed for a couple with two young children, who wanted a space to accompany their daughters' growth and also environments with privacy for home office work. The highlight of the project is the panoramic view of the sights of Rio de Janeiro and the sea at Ipanema Beach. From dinner, it is possible to see Morro Dois Irmãos, and from the home theater, a part of Arpoador. The kitchen is integrated into the living and dining room and was designed using the same materiality to function as an extension of the social area.
The intimate space was divided into three suites: the toy room, the children's room, and the master suite for the couple. The office was accommodated inside the master bedroom, where it is possible to hide its access through a coplanar door that, when closed, simulates a panel. The structural rhythm of the original property provided the possibility of leaving the structure of the apartment visible in the social area and the kitchen, as part of the project. The biggest challenge, however, was making all the complementary projects compatible so no slab area had to be reused, hiding the air conditioning and speakers into the drywall walls, and allocating the lighting on overlapping tracks.
The other finishes adopted a neutral aesthetic. The flooring in the social area is made of sintered stone slabs; the walls are covered with wood paneling; the private spaces feature engineered wood floors and off-white painted walls. The interior design includes furniture designed by Arthur Casas, such as the Fusca sofa, the Apache dining table, the Max dining chairs, the Jet Set armchair, the Grampo lamp, and the Belterra nightstand, along with the Ondas and Willys sideboards. Complementing Casas' pieces are the Paulistana armchair and the Anette armchair by Jorge Zalszupin, as well as the Vintage side tables and the Taccia table lamps by the Castiglioni brothers for Flos.


























