Park and Snøhetta have joined forces to transform Pirelli 35, a 1960s office block in the heart of the Porta Nuova district in Milan, into a dynamic, accessible, and environmentally sustainable urban landmark. The project, commissioned by COIMA, redefines the relationship between architecture, landscape, and public space, creating a new focal point for urban regeneration. As a testament to its strategic and architectural relevance, Pirelli 35 has already been chosen as the Italian headquarters of both Adidas and Condé Nast. The international design competition for Pirelli 35 led to an unexpected yet visionary collaboration. Initially presenting two distinct yet complementary proposals, Park and Snøhetta were invited by COIMA to merge their expertise into a unified project. This partnership -Snøhetta's first in Italy- exemplifies how architectural quality and sustainability can coexist in a mutually enriching collaboration.
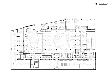
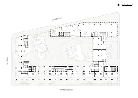
Rather than opting for demolition and new construction, the project embraces the potential of adaptive reuse, preserving the existing structure to significantly reduce embodied carbon emissions. The architectural interventions enhance the building's aesthetic and structural qualities while reinforcing its connection to Milan's historical and contemporary fabric. One of the project's most distinctive features is the transformation of a once closed and impermeable structure into an open, accessible urban space that restitches together different areas of the city. Originally a compact, self-contained volume, the building has been reimagined by removing its central wing and introducing a suspended volume that hovers above the new public courtyard. This intervention breaks the rigidity of the former structure, dramatically enhancing permeability and seamlessly integrating the site with its surroundings.
The result is a vibrant green space interwoven with the urban fabric, an inviting meeting point that fosters interaction between tenants and the public, redefining the building's relationship with the city. The new courtyard, paved with an undulating stone carpet, encourages pedestrian movement through the site, creating a direct and fluid connection between Milan's Central Station and BAM, the contemporary garden in Porta Nuova. Large floor-to-ceiling openings frame this space, enhancing transparency and strengthening the dialogue between the building's interior and the urban realm. "When being commissioned with the task to redesign the Pirelli 35 in the heart of Milan, we were extremely happy with the forward-leaning possibilities of creating a building that is given back to the public of Milan. This is very much in accordance with how Snøhetta has been thinking since its very inception, understanding that desegregation of cities, making buildings indoor accessible for the larger public, creating public ownership of these buildings, and increasing the accessibility for the public. I feel that we've created a building that is a good example of how regenerative architecture should look in European cities, and in the city of Milan," says Kjetil Trædal Thorsen, Founding Partner of Snøhetta.
The façade on Via Bordoni, including the bridge element, has a metal cladding with a terracotta-coloured textured paint finish. establishing a dialogue with the residential scale of the neighborhood. Meanwhile, the re-clad original structure, featuring a concrete-effect finish, harmonizes with the modern high-rises of Porta Nuova, balancing history and innovation. "This transformation is an opportunity to demonstrate how architecture can bridge past and future, memory and innovation," explains Michele Rossi, Founding Partner of Park. "By working within the existing footprint, we have created something entirely new—an urban space that belongs to the city."
Pirelli 35 integrates cutting-edge sustainability strategies that set a benchmark for future urban developments. The project prioritizes low-carbon construction, reusing existing structures, and incorporating recycled materials throughout. A large photovoltaic canopy powers a water-to-water heat pump, optimizing thermal generation, while smart building systems monitor and enhance energy efficiency. By shifting the façade behind the existing structural grid, the design also reduces solar heat gain, improving environmental performance without compromising transparency or daylighting. More than a workplace, Pirelli 35 is a dynamic, inclusive, and people-centric environment that enhances Milan's urban experience. With its mix of workspaces, public areas, and a vibrant rooftop, the project fosters round-the-clock activity in one of the city's most evolving districts. Pirelli 35 embeds Milan's evolution, where historical memory and contemporary innovation come together to redefine the city's architectural and urban future.


































