Le Labo is a fragrance brand from New York. I first became aware of the brand in 2016, when many factory-style stores, such as Blue Bottle Coffee and Dandelion Chocolate, were emerging in Europe and the United States. I was walking down the streets of London when I chanced upon Le Labo’s distinctive space, with its striking matte black steel storefront reminiscent of a laboratory. My curiosity was piqued, but I wimped out and didn’t go in because I didn’t know what kind of store it was. Later, a friend told me it was a fragrance brand called Le Labo, with an in-store lab for manually blending fragrances, and it left a lasting impression on me.
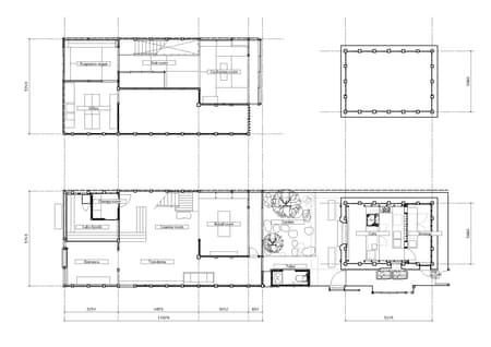
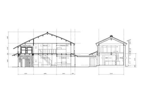
After this experience, I have encountered Le Labo stores in various places. Then, I was asked to design their Japanese flagship store in a 145-year-old machiya (traditional townhouse) in Kiyamachi, Kyoto. Le Labo has established its brand image in a space that combines raw, exposed architecture with hot-rolled steel fixtures and vintage furniture, demonstrating its sensibility that finds beauty in used objects and the wabi-sabi concept. While it was essential for this project to share the same philosophy, we both collectively felt it necessary to create a store that reflects the local and historical context of this old machiya in Kyoto because it is structurally and stylistically different from the concrete buildings that have housed their stores.
How should we combine Japanese and Western cultures? Where should we take off shoes in the first place? For example, what kind of display is appropriate for a Tatami room? How high should merchandise displays be so customers can easily see them standing in a Japanese-style space? How should we incorporate lighting into a space built in an era without lighting fixtures? How can we integrate the image of blending into a Japanese space? How much of the existing part of the building should be left as is, while we want the space to be clean to handle products safely? How should we incorporate the brand’s typical finishes in a wooden structure?
We repeatedly discussed these many questions with Le Labo and Deborah Royer, the Creative Director, and worked out everything from design to planning, detailing of furniture, and antique furniture selections. Specifically, the countertops, wall shelves, staircase, and other architectural elements are composed using the language of the machiya, and the paint scheme is consistent with the existing one, using antique colors of bengara (red earth pigment) and shoen (pine soot). We selected mainly antique Japanese furniture pieces for display and vintage Western lighting fixtures for various locations.
This Japanese-style space is set in an ancient city where traditional culture is deeply rooted and distinctly different from modern cities in Japan. By carefully connecting and blending the machiya building with new fixtures, furniture, and products, it embodies the spirit of Le Labo, which treats time, age, craftsmanship, handiwork, and textures with great care.




















