The project involved renovating the former Ariake-so, a two-story wooden inn built in 1868 on the remote island of Tsushima in Nagasaki Prefecture, into a hotel. Tsushima is closer to Busan, Korea than to Kyushu, Japan.
The island has historically received many visitors from Korea for a long time and has strong ties to Korean culture. The former Ariake-so stands on Omachi-dori in Izuhara, the city center, within walking distance from the ferry terminal. Against this backdrop, a project was launched to transform this location into the island’s gateway to welcome guests from Japan and abroad.
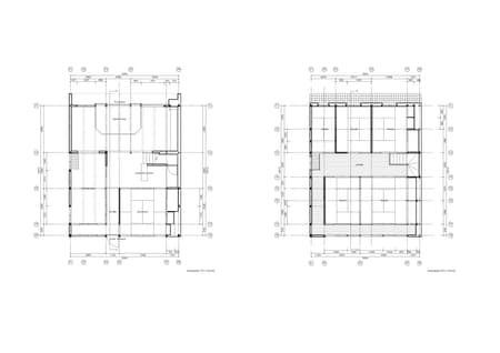
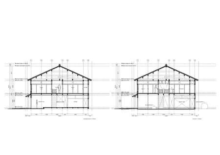
To this end, we maintained the façade built in the first year of the Meiji era in the best possible manner while renovating the interior and arranging the window areas so visitors could sense the changes happening inside the building. We demolished the first floor, which had gone through numerous incomplete renovations, and removed existing elements to create an open space. The space is designed to raise expectations for the upper floor, meet daily needs, and host events, inspiring hopes for the future.
A central corridor formerly divided the second floor into east and west rooms. We added another staircase to allow direct access to the east and west rooms, eliminated the central corridor, and created an atrium through which the two rooms on the east and west sides face each other. In terms of expression, we composed newly modified areas in white, aiming to mix Japan and Korea.





























