The new Center for Innovation and Active Citizenship at the Frederick Gunn School unites a range of learning environments together in one integrated building. The school was founded in 1850 by Frederick William Gunn, who was an educator, abolitionist, and advocate for the outdoors, and responsible for innovations in curriculum and student development. The new building honors his vision, replaces an outdated brutalist science building, and brings a contemporary expression to campus while maintaining the scale and integrity of its surrounding context.
The design concept reinterprets the local typology of a contemporary farmhouse. Three pavilions shape the massing and organize the program into three zones. This approach reduces its perceived scale in relation to neighboring historic buildings. Materiality is inspired by the wooded and rocky nature of the site and the vernacular architecture of the campus and region, focusing on a simple palette, uniformity of colors, and treated materials. Sasaki also designed the building's landscape, which creates new circulation paths from the campus' two primary open spaces. The footprint of the building was designed to preserve adjacent rock outcrops and mature trees, and interior seating and custom tables creatively use reclaimed campus oak trees.
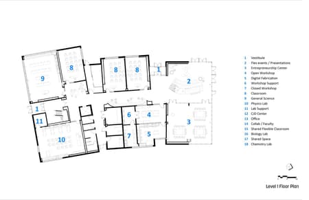
The building's program transitions from purpose-built spaces, such as physics, biology, and chemistry labs, to flexible spaces like shared flex classrooms, the Entrepreneurship Center, and the Center for Just Democracy. The design minimizes environmental impacts with solar photovoltaic panels providing sustainable energy and a geothermal well field providing the majority of the heating and cooling. Combined with a highly efficient envelope, these contribute to bringing the project close to Net Zero.
Affectionately called "The Lizzie," the Center for Innovation and Active Citizenship has become a hub for the campus community. Its open and flexible learning environments allow students and faculty to turn ideas into action.




















