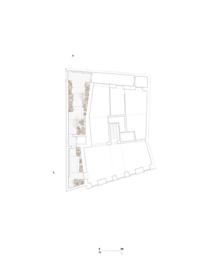
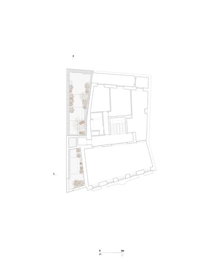
In response to the problem of accessibility to the Montijo Municipal Gallery building, the introduction of a lift in a 19th century building in the heart of the city center was the starting point for the construction of this small public work, an 80 m2 garden.
The project takes advantage of a portion of land adjacent to the gallery building and proposes the construction of a contained garden, a kind of ‘hortus conclusus’, in two outdoor ‘rooms’ of different altimetries capable of offering spaces for mental relaxation in an atmosphere that is both public and highly intimate.
The relationship that is established between the garden and the city provokes a sense of curiosity, only allowing a glimpse of each other through a metal railing placed at the apex of the building. The walls, plastered with a slightly sandy cement mortar, give cohesion to the space, allowing the values of scale, proportion, light and shadow to stand out.





















