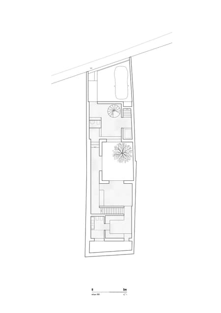
Located in the Lapa neighborhood, next to the Museu Nacional de Arte Antiga, this house is built on a narrow and long plot, measuring approximately 7m x 26m. Originally the plot was occupied by a small industrial pavilion, which was entirely removed to make way for the new house.
The idea of building a house integrated into a block, where only the façade relates to the city and its context is a theme that has always been part of Bak Gordon's thinking.
How to build a house with the language of its time, that simultaneously respects and enhances the virtues of the place?
The façade reveals this concern, letting the internal environments of the house itself echo. Whether through the ground floor and the way the entrances are developed (access door and garage door) in a wooden grid, leaving a glimpse of a ventilated interval between interior and exterior, or at the level of the dining room with a single window in the façade, or even with a kind of subtracted space on the living room floor, where a small garden/flower box ensures the transition between interior and exterior environments.
The house develops along the length of the plot, mostly in two volumes that share a common patio, accessible from a fresh loggia, entirely covered in handmade tiles. In a kind of promenade, the house reveals itself in multiple directions, whether horizontally between the more private bedroom and office spaces or vertically through the social spaces, until reaching the roof and enjoying the magnificent panoramic views over the Tagus River.
The combination of exposed concrete in the façades and ceilings, as well as the green handmade tiles, the anodized aluminum frames, or the Thermo modified wood in the main facade, give the building an important personality and contribute to the atmosphere of the place.


























