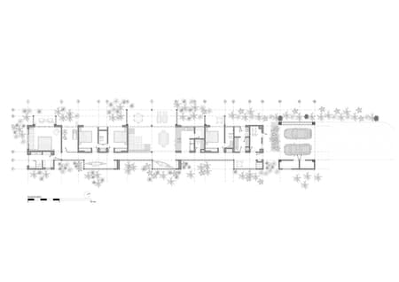
Faced with a strong slope of the land towards the Mendihuaca river and a context of surrounding native forest, we proposed to carry out the least number of earthworks in the place, generating a narrow and extensive terrace to locate the project.
In this way, we designed an elongated house parallel to the nearby river, in which all the essential spaces enjoy the best landscape and the back circulation works as a line parallel to the slope of the mountain.
The house's spaces configure a single-level bar that forces you to go through the place from the parking lot and services, through the social area, to the rooms. The front side of the house has terraces that bring the home closer to the river, and the back has lounges with hammocks and small spaces in contact with the native vegetation of the mountain.
We proposed a heavy structure in exposed concrete, resistant and with low maintenance; three light roofs in wood and native palm fabrics; and enclosures in sustainable wood shutters. The interior space runs along an exposed concrete floor, walls, and veneers in warm colors and the natural tones of the roof. The elongated and slim shape of the house allows all spaces to have cross ventilation, and the palm roofs control the interior temperature efficiently and economically.






















































