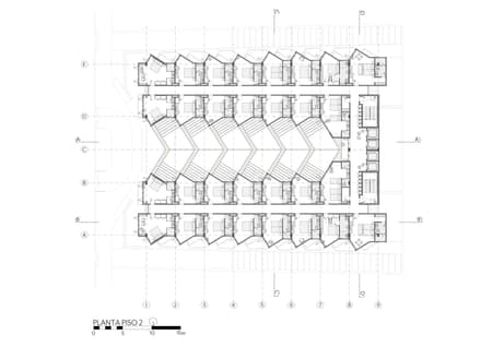
Joao Pessoa is a tropical, coastal city with a regular, flat urban fabric that develops along an extensive tourist beach. The Ba'ra hotel, with 126 rooms of variable areas -22, 32, 52, and 72m2- is located in a block facing the beach and accessed from Avenida Cabo Branco. This street is a vehicular axis parallel to the beach, a cycle path, and a recreational space for walkers, athletes, and popular festivals.
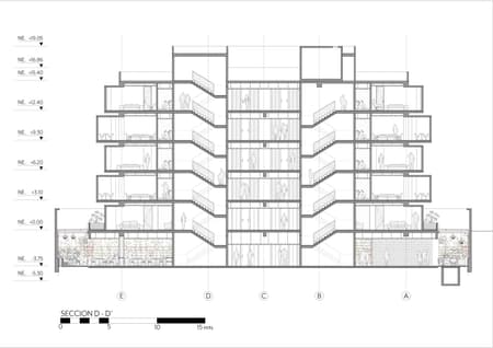
Faced with these climatic and urban qualities, and a municipal regulation that only allows a height of five levels for constructions near the beach, we proposed a building with a 'U'-shaped plan, thus generating a semi-public central space available for hotel events related to the urban life of the city and the beach. In this way, visitors can access the hotel on foot, crossing a space covered by metal pergolas and hanging gardens and then going down to the lobby and restaurant areas in a naturally lit basement. We arranged all the rooms symmetrically along the 'U' shape, generating some that look outwards and others that look towards the central void.
Additionally, we allow each room to have an ocean view using staggered diagonal cantilevers. On the last level, we designed a central bridge over the metal pergolas, which leads to two terraces with a restaurant and the pool, spaces from which users observe both the central void and the intense activity of the city and the sea. Finally, each room has practicable windows to allow cross ventilation and metal shutters to control the sun and maintain privacy.





































