Wuzhou Primary School is designed to support new ways of learning that prioritize creativity, play, and exploration. Located in the center of Shenzhen, the school responds to the city's transition from an industrial economy toward one driven by discovery and innovation by rethinking how space can shape everyday educational experience.
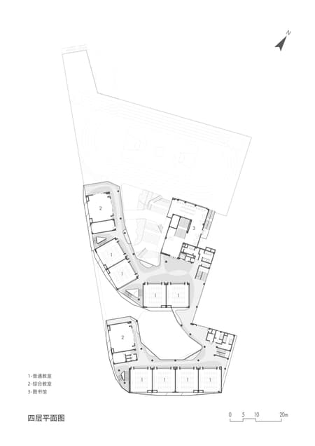
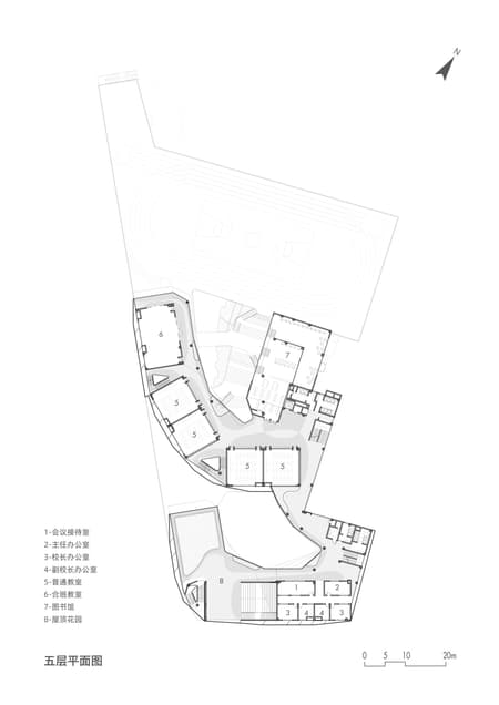
The public school is conceived as a three-dimensional Learning Landscape, operating as a spatial analog to approaches that emphasize openness, curiosity, and hands-on learning. Learning is organized as a flowing field of varied spatial conditions rather than a rigid arrangement of classrooms and corridors. A gradient of spaces supports different modes of learning and interaction, encouraging student-centered engagement while allowing the school to adapt over time as educational needs evolve.
The environment beyond the classroom is treated as equally important for learning. Covered outdoor areas, architectural features designed for occupation, and classrooms that open to the outside blur the boundary between interior and exterior. Learning outside allows students to move beyond the limitations of the desk, creating opportunities for hands-on experimentation and direct engagement with nature.
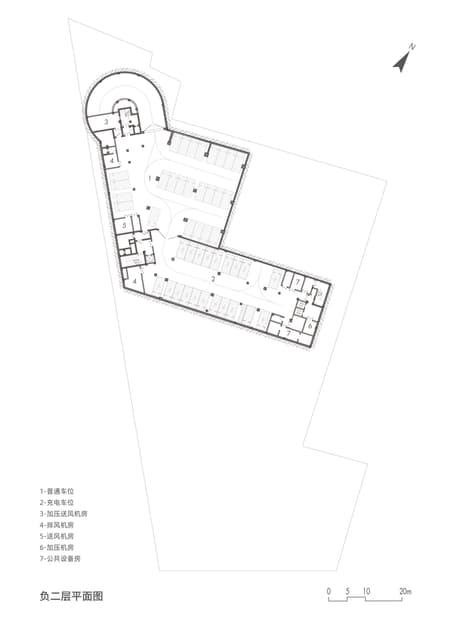
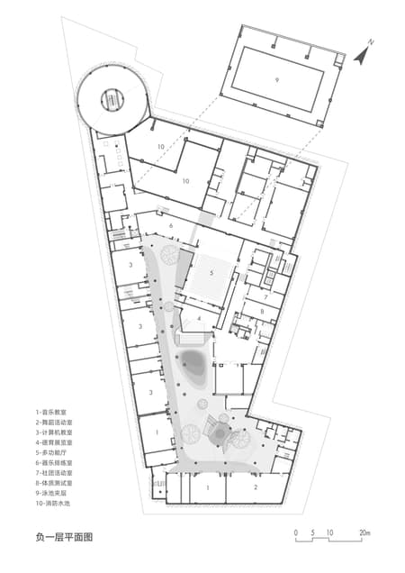
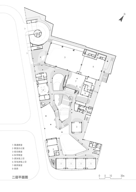
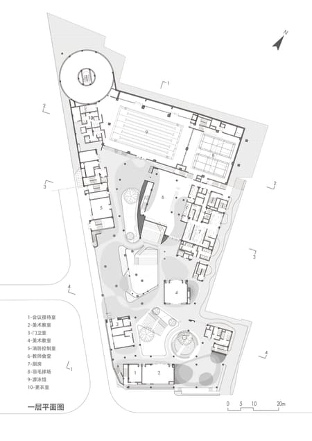
The Learning Landscape is structured around three primary landscape elements: the Mountain, the Valley, and the Beach. Located in the main courtyard, the Mountain contains the school's theater and cafeteria, while its stepped exterior provides vertical circulation and seating. At its base, a raised landform functions as a stage for performances and events. The Valley, scaled for younger students, is organized in a similar way. Stairs on opposing sides step down toward a central mound, creating terraced seating for informal gatherings. Adjacent to the Valley, the Beach is conceived as a playful terrain composed of undulating hills that support younger students' physical development and encourage open-ended play.
Throughout the school, large, open interstitial spaces support cross-disciplinary learning, collaboration, and informal exchanges. Additional terraced spaces, including the green roof, library, and sports facilities, connect across levels and strengthen visual and physical continuity. Vegetation, integrated throughout the school, helps with cooling in Shenzhen's tropical climate, filters pollution, and dampens noise from the busy streets. Students also study and nurture these plants. At an urban scale, the school is conceived as an extension of the large park directly to the north. In addition, the cooling effect of the school's natural greenery helps mitigate the urban heat island effect of surrounding commercial development.

.jpg?w=450&q=75&dpl=dpl_6NKhQbYoNKZ4YGsW1tKTDHjTc7uH)
.jpg?w=450&q=75&dpl=dpl_6NKhQbYoNKZ4YGsW1tKTDHjTc7uH)


.jpg?w=450&q=75&dpl=dpl_6NKhQbYoNKZ4YGsW1tKTDHjTc7uH)
.jpg?w=450&q=75&dpl=dpl_6NKhQbYoNKZ4YGsW1tKTDHjTc7uH)
.jpg?w=450&q=75&dpl=dpl_6NKhQbYoNKZ4YGsW1tKTDHjTc7uH)
.jpg?w=450&q=75&dpl=dpl_6NKhQbYoNKZ4YGsW1tKTDHjTc7uH)
.jpg?w=450&q=75&dpl=dpl_6NKhQbYoNKZ4YGsW1tKTDHjTc7uH)
.jpg?w=450&q=75&dpl=dpl_6NKhQbYoNKZ4YGsW1tKTDHjTc7uH)









.jpg?w=450&q=75&dpl=dpl_6NKhQbYoNKZ4YGsW1tKTDHjTc7uH)

.jpg?w=450&q=75&dpl=dpl_6NKhQbYoNKZ4YGsW1tKTDHjTc7uH)

.jpg?w=450&q=75&dpl=dpl_6NKhQbYoNKZ4YGsW1tKTDHjTc7uH)

.jpg?w=450&q=75&dpl=dpl_6NKhQbYoNKZ4YGsW1tKTDHjTc7uH)
























