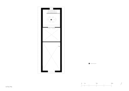
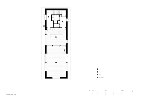
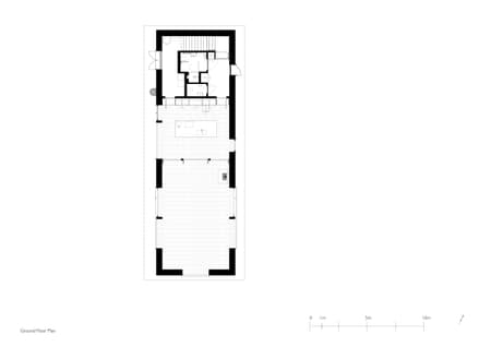
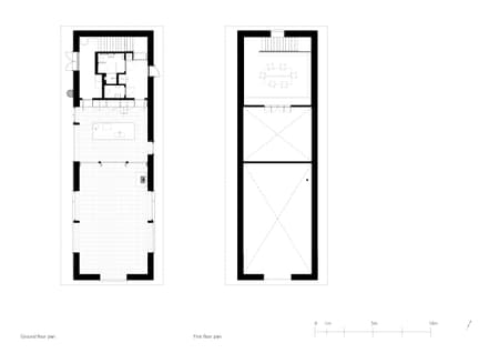
The Apple House is a materially innovative education and wellbeing hub set within a previously neglected orchard. The building combines a glulam portal frame, designed by Structure Workshop, with in-situ cast hemp-crete and locally sourced materials.
Large openings connect multifunctional spaces to the surrounding landscape on multiple axes, framing a woodland to the south, a vegetable garden to the east and extensive plant library to the west. A year-round community programme provides professional and public participation in horticulture and environmental stewardship, including to local schools, youth groups, mental health charities, residents and designers.
The brief for the Apple House emerged on the understanding that working with nature can radically transform people’s health and well-being and that community inclusion can be fostered through gardening and other forms of creativity.
The site’s location, within the Metropolitan Green Belt, meant that there were strict planning constraints. Collaboration with the local community was critical in reinforcing the project brief and demonstrating ‘Very Special Circumstances,’ required for planning permission.
The values of the project have been instilled into the architecture through the imaginative use of natural materials and a radical approach to material sustainability. Throughout the project, natural finishes simultaneously act as visible structural components. An innovative spruce glulam structure, designed by engineers Structure Workshop, creates a large open volume, with generous openings connecting interior spaces to the natural landscape on all sides.
The spruce portal frames are connected by birch ply sheathing, which eliminates the need for a ridge beam or purlins and expressing the individual bays of the portal frames. The hempcrete, which was cast between the frames, acts as a carbon store and creates structural stability to the structural frame as well as providing insulation. Handcrafted floors of local unfired clay, hempcrete and lime plastered walls along with cleft oak cladding create a warm and calming atmosphere.
Collaborating with natural materials expert Will Stanwix, Okra developed a low cost, earthen floor using unfired clay ‘strock’, typically used for walling and manufactured by local brick maker H.G Mathews. By cutting the bricks in two and sealing them with a bespoke, pigmented linseed oil, the warm natural tones of the clay were retained. Cleft oak, which was sustainably harvested immediate to the site from overcrowded positions, was selected for the exterior cladding. The oak was cut on site to dimensions that enabled them to be processed entirely by hand. The wavy, irregular quality of the cladding has a rugged aesthetic and has become a habitat for insects and rare bats.
The Apple House provides infrastructure to support an ongoing public programme within an environment that is welcoming and inclusive to the diverse needs of the public, while prioritising people with the least opportunity to access the natural world. Accessibility features include ramped access, accessible WC and washroom, and wellproportioned, adaptable spaces.
The plant library which surrounds the building is designed by Tom Stuart-Smith Studio and features more than 1500 different varieties of predominantly herbaceous plants. This unique and extensive educational resource is for anyone interested in plants and planting design: whether they be visiting students of horticulture, gardeners, garden designers, community groups or school children.
Activities range from school workshops to events hosting internationally acclaimed garden designers, florists, artists and therapists. Professional events help to inspire creativity and foster collaboration, while in turn generating revenue to support the not-for-profit school and community outreach initiatives. Local charity, Sunnyside Rural Trust who provide support and horticultural training and employment to people with learning disabilities have a permanent presence on the site where they run a small propagation unit for growing plants from the plant library collection.








































