This project involves a relatively compact tenant building situated in the heart of Tokyo. Facing an intersection, the site is located directly above a subway station at the end of a series of large-scale developments stretching from Otemachi to Hibiya Street. It offers a panoramic view of the high rises standing along the inner moat beyond Hibiya Park.
The design operates on three themes: “symbolic significance as the flagship building of the Ginsen brand,” “rationality as a tenant building,” and “the potential for an office building without large-scale development to enrich the urban landscape.” In response to these themes, the form of “eaves and verandas” commonly found in traditional Japanese homes was employed.
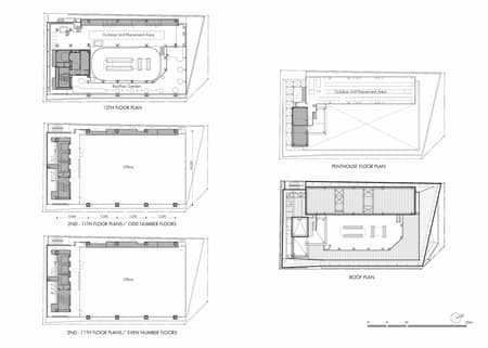
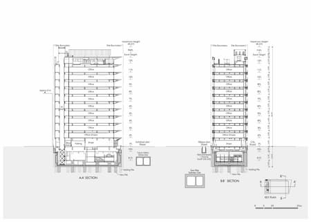
Symbolism originating from interaction with urban space - The whole urban expanse from Hibiya Park to Otemachi serves as the conceptual site. Facing this major city axis, twelve eaves are set at an angle, under which pillar-free, functional office rooms are installed. This layering of eaves that seamlessly blends into the sky creates a spatial depth at the interface between the cityscape and the mid-scale office building, which is typically void of special urban attractions or open squares. The facade has evolved from mere external decoration into vertical “urban fabric,” generating a symbolic appeal that captivates people waiting at the intersection.
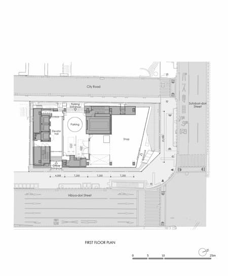
Well-designed workplace environment linked to local and global ecology - As a fundamental environmental strategy, on the typical floors, the “Human Core” (comprising elevators and toilets) was located on the south side while the “MEP Core” was placed on the west side to prevent office spaces from directly facing the southwest outer wall with high heat load. Office rooms were opened wide with full-height sashes on the north and east facades facing the main road. Overhanging eaves extend beyond these windows, filling the empty space between the rectangular room and the angular site boundary with a veranda-like spatial extension.
Utilizing wood under the administrative framework “Minato Model,” the eaves made of non-homogenous wood serve dual functions; they capture carbon dioxide as an environmental feature and act as a psychological buffer between the intersection’s bustle and the quiet office space. Together with the feeling of verandas, they enhance the commercial appeal of the office building. The outdoor maintenance corridor for the “MEP Core” on the west side is also accessible from the northernmost office rooms. While it is not a legally mandated evacuation route, the floor plan is designed with a high level of safety without dead ends. The Ginsen Nishi Shimbashi Building aims to become a prototype for general tenant buildings, defining their relationship with the environment and urban space.





















