Located in the heart of the Plateau Mont-Royal district, the project consists of the renovation and expansion of a duplex dating from the 1920s. Our project nicknamed ''le Petit Merlot'' owes, among other things, its name to the neighborhood that hosts it, Le Petit Laurier. With its lively shopping street, this neighborhood represents the typical Montreal way of life where relationships between neighbors are built around a good meal. Petit Merlot owes its name to this spirit of conviviality but also to its red clay brick cladding which characterizes the surrounding built environment.
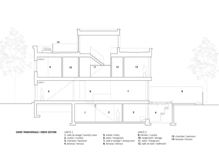
Built on a 1640 ft2 lot which does not benefit from a service alley, the duplex is built jointly with its 2 immediate neighbors. It follows the alignment of the neighboring facades at the foot of the sidewalk. The project is made up of 2 residential units stacked on top of each other with access to the rear courtyard via a porte-cochère. Limited by a maximum permitted height of 2 floors, the project has a mezzanine to expand the space of the upper unit.
For the sake of heritage integration, a return to the original architectural characteristics was put forward for the front facade such as the red clay brick in metric modular format on the facade, the red-painted hemlock lintels above the windows and the St-Marc stone spandrels under them. Other attributes from another time complete this typical "plateau façade", including French windows with multiple panes as well as a right foot in molded wood between the entrance doors. The original molded wooden cornice was meticulously restored and repainted in merlot red. The 1420 sq. ft. lower dwelling unit is designed in unison with the backyard garden. Completely transparent, the rear facade is generously glazed to create visual continuity between the living spaces and the intimate exterior landscape. On the ground floor, we find the living room, the dining room, the kitchen and the master bedroom. In the basement, an English courtyard with planted terraces is sculpted into the ground to amplify the entry of natural light into the office and the bedroom below.
The choice of interior finishes is intended to be consistent with that of the exterior choices. The visual homogeneity of the project is ensured by shades of red, through the various architectural elements. The theme of this color is present in the choice of brick, window mullions, parapet flashings, painting of hemlock lintels and painted steel wall covering. In the same spirit, inside we find portions of walls and furniture painted red such as the library in the upper accommodation and lighting fixtures in the lower accommodation. Finally, Le Petit Merlot is intended to be a project on the scale of its neighborhood which is inspired by the spirit of Le Petit Laurier and the architectural characteristics of its adjoining plexes. It offers an interface integrated into its heritage urban setting, while providing an updated living space, reflecting contemporary living habits.
































