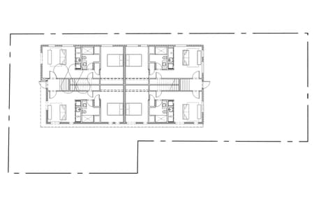
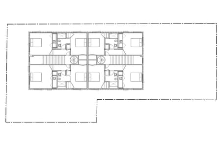
As one of the fastest-growing cities in the country, Raleigh is experiencing the need for housing densification and is fostering new centers for community growth. Located just down the street from Downtown in a primarily single-residence neighborhood, LOHA’s South E8 brings eight units to a lot that previously had one.
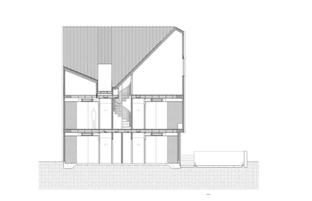
Retaining the visual scale of its context, South E8 employs a distinctive massing strategy and unique floor plan to integrate living quarters with roof decks and outdoor spaces. Utilizing an efficient footprint, passive design strategies and recyclable materials, this project brings sustainable approaches to a future vision of housing in the area.
The interior uses the massing to create exceptional spaces with plenty of natural light. The roof decks frame the Downtown skyline and provide additional gathering spaces. On the exterior, the brick patterning strategy at the base leads to metal paneling as the home rises. South E8 exemplifies the typology of how to densify Raleigh while retaining neighborhood identity.





















