While conceiving the architecture for this home in Ahmedabad, one of our primary drivers was a response to the hot and dry summers in the city, with average daytime temperatures reaching 42 degrees Celsius. The form of the house is derived from its climactic orientation as well as shading devices that keep the internal spaces cool. Deep verandahs and overhangs, horizontal pergolas, and vertical louvers gently filter the fierce sun.
Strategically placed apertures promote cross-ventilation while reducing heat gain. The house is approached from the northeast via an ample portico, clad in expanses of ribbed timber. The portico is peppered with geometric cutouts admitting natural light into pockets of green and highlighting a linear dholpur stone wall leading to the main door.
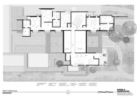
Entry is through a linear foyer that guides one into a double-height living room flanked on its east and west with generous shaded verandahs. The east verandah faces an intimate pool court while its counterpart on the west (contrastingly) overlooks an abundance of landscaped green. Two existing old neem trees were accommodated in the building design adjacent to this area to enhance shade in the west. The north wall of these verandahs are clad in a grooved and patterned dholpur stone and witness an ever-changing play of sciography on their surface throughout the day. Ahead of the foyer is another double-height volume housing the staircase.
One of the most exciting elements of the house experientially is the circulation to the first floor. A sculptural corten steel staircase connects both levels and leads to a bridge that spans 30ft across a double-height living space connecting two sections of the house and leading into an entertainment lounge. The circulation plays the protagonist in defining the spatial experience. The staircase flanks the dining area, separated by sliding fluted glass doors for enclosure or connectedness.
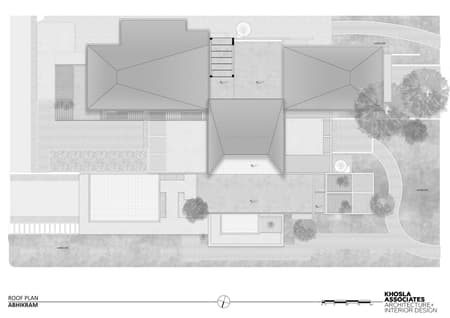
There are three trapezoidal roofs that envelope the double-height living room as well as the upper-level bedrooms. The one above the living space admits a soft quality of north light into its volume. The roofs are clad on their underside with the warmth of wood veneer and contrast with the cool beige terrazzo floors that extend through the home. The verandahs and semi-enclosed spaces have a tactile and natural quality to them. The west verandah flooring in river-finished kota extends to brick flooring in the landscape and compliments the accent dholpur stone exterior walls.
The interior sensibility has a soft and muted color palette of aquas blues, beiges, and blush. The chosen pieces of furniture were mostly custom designed by us in collaboration with Mangrove Collective. Contemporary Indian Art, tribal sculpture, Jain Pichwais, and traditional rugs adorn the spaces, and a quintessential Gujarati swing takes center stage in the verandah.



















