321 Villa Articulates Flexibility within a Composed Framework
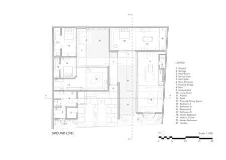
Conceived as a post-pandemic rental property for digital nomads, the 3 2 1 Villa in Canggu was designed by K-Thengono Design Studio to accommodate varied occupancy scenarios. The brief called for three self-contained units that could operate independently or combine into a single compound, offering adaptability across guest configurations.
Set on a compact 391-square-meter site bordered by dense residential development and intermittently dry rice fields, the project addressed constraints of privacy, orientation, and spatial efficiency. The solution is to turn the visual focus inward, creating a sheltered environment insulated from its immediate context.
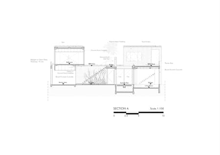
Two L-shaped volumes define the perimeter of the site, establishing the primary architectural framework. The left wing houses the two-bedroom unit, while the right contains the three-bedroom unit. Within this configuration, a central passageway mediates circulation and access. Sliding woven rattan screens line the passageway, allowing the option for privacy or interconnection between two units. Pools are inserted into the resulting voids between volumes, transforming negative space into visual anchors for both wings.
Two rectangular masses are stacked atop the lower volumes, offset to shade the walkways below. The upper level of the left wing features a one-bedroom unit with its own pool, accompanied by an outdoor staircase that leads to the reception area. The right mass creates the duplex configuration of the three-bedroom unit.
Materials were chosen for their tactile qualities. The lower level is cast in textured concrete that evokes the grain of timber. In contrast, the upper volumes are clad in charred wood panels. A rammed-earth wall at the entrance provides privacy and anchors the composition.
Through its stacked configuration and inward-facing typology, the 3 2 1 Villa translates flexibility into a serene retreat suited for evolving modes of living and hospitality.































_DZ-01.jpg?w=450&q=75&dpl=dpl_6NKhQbYoNKZ4YGsW1tKTDHjTc7uH)
_DZ-01.jpg?w=450&q=75&dpl=dpl_6NKhQbYoNKZ4YGsW1tKTDHjTc7uH)
_DZ-01.jpg?w=450&q=75&dpl=dpl_6NKhQbYoNKZ4YGsW1tKTDHjTc7uH)
_DZ-01.jpg?w=450&q=75&dpl=dpl_6NKhQbYoNKZ4YGsW1tKTDHjTc7uH)
_DZ-01.jpg?w=450&q=75&dpl=dpl_6NKhQbYoNKZ4YGsW1tKTDHjTc7uH)
_DZ-01.jpg?w=450&q=75&dpl=dpl_6NKhQbYoNKZ4YGsW1tKTDHjTc7uH)
_DZ-01.jpg?w=450&q=75&dpl=dpl_6NKhQbYoNKZ4YGsW1tKTDHjTc7uH)
_DZ-01.jpg?w=450&q=75&dpl=dpl_6NKhQbYoNKZ4YGsW1tKTDHjTc7uH)
_DZ-01.jpg?w=450&q=75&dpl=dpl_6NKhQbYoNKZ4YGsW1tKTDHjTc7uH)
_DZ-01.jpg?w=450&q=75&dpl=dpl_6NKhQbYoNKZ4YGsW1tKTDHjTc7uH)
_DZ-01.jpg?w=450&q=75&dpl=dpl_6NKhQbYoNKZ4YGsW1tKTDHjTc7uH)
_DZ-01.jpg?w=450&q=75&dpl=dpl_6NKhQbYoNKZ4YGsW1tKTDHjTc7uH)