The Bizkaia tower is a building whose construction ended in 1969. It was originally intended for office use, housing the headquarters of the Bilbao Vizcaya bank. The building has an area of 30,400m2 divided into three basements and 22 floors above ground, in all a height of close to 90m.
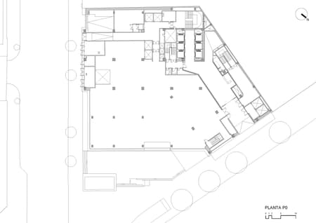
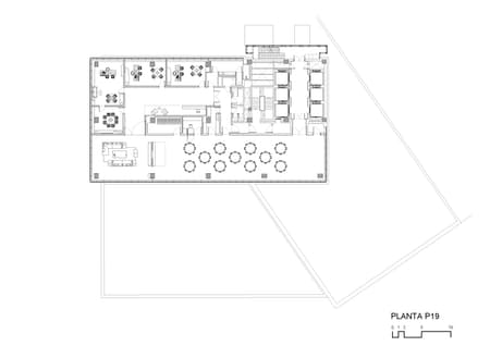
50 years after its construction, an integral reform of the building has been carried out that has allowed the has allowed commercial use on the first 6 floors, keeping the rest of the spaces for office use.
Given the state of the building, it was necessary to completely empty it, keeping only the structure to undertake a comprehensive reconstruction.
The building's structure, made up of metal pillars and beams covered with concrete for fire protection purposes, has also been reformed with generalized reinforcements on the commercial floors and on the office floors where public use is foreseen. With the exception of the central block of elevators and stairs in the tower, the rest of the communication cores have been demolished and their gaps closed, to generate other locations with greater capacity in new communication cores.
Other far-reaching structural changes have been undertaken as a result of functional conditioning factors in the commercial area, such as the implantation of an opening that connects 5 floors of the building with escalators and that has required the elimination of one of the building's main beams. This has meant the need to include new bracing elements.
Another key aspect of the reform has focused on the facade of the building, protected by municipal regulations. Prior to commencing with the drafting of the façade construction project, research and data collection work was carried out to be able to build a façade with identical characteristics as the original, correcting the modifications that the building had undergone over the years.






































































