Apartment 73A is located in a central, densely populated part of Tbilisi. It’s on a high rise on a street with many tall buildings - business centers, hotels and apartments. It’s always busy and the noise and bustle of the city can be seen and heard from the windows of the apartment. So, the design and textures of the interior were chosen to ensure that the rhythm of the city does not disturb the coziness of the space.
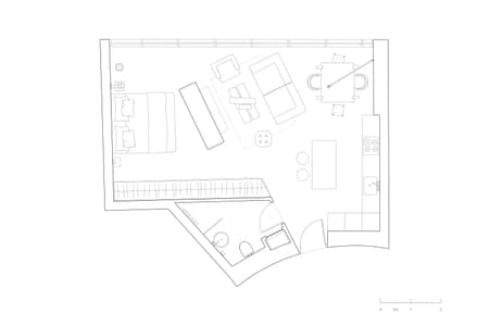
The unified, open space of the apartment perfectly accommodates everything necessary for living. The main accent is the kitchen with its marble stone island, whose textures provide the natural motifs of the apartment. An integral part of the interior is the building’s structural column that separates the bedroom from the rest of the apartment. It is lined with Georgian basalt stone panels whose neutral color softens the column’s presence. The stained-glass windows provide stunning views over the north west of the city and thus allow for impressive panoramas at sunset.
Some walls are grey and are treated with micro cement. The cold tone combines with other walls which are covered with dark wooden panels, behind which the bathroom and cupboards and cabinets are arranged. This protects the interior from awkward shapes and does not interfere with the unity of the space. The bathroom is also made with micro cement; the contrast here is created by the cylindrical sink and black Zellige tiles by Cle.
Most of the furniture has been individually designed. Idaaf Architect’s Element Dining Table, made from a hundred-year-old massive oak, is the centre piece. The side table Aguri/Brick, made of massive walnut wood, stands in the bedroom. The burnt wood Coffee Table 73A in the living room was also designed by Idaaf Architects Studio. Lamps were selected from Hay, &Tradition, RBW and FAS stores. Furniture and other items were selected from Around the Studio, Buster & Punch, Cle Tiles, Hay and &Tradition. The paintings are the work of the Georgian artist, Maka Batiashvili.
The interior was conceived for a young man with a minimalistic approach to living.




















