The new SG Kindergarten and Nursery was constructed by the consolidation and privatization of four dilapidated public preschools in Katori City, Chiba Prefecture. The area has been known as a hub of cultural exchange that prospered due to the waterway transportation across the Tone River during the Edo period. The distinct building type, Machiya (traditional townhouse), and townscapes from that specific period have been carefully preserved and designated as a Preservation District for Groups of Historic Buildings.
The SG Kindergarten and Nursery strives to be a place where children can learn about and appreciate the unique history from the past to the present day. Thanks to the uniqueness of their culture, which has been gradually formed by the interaction of different cultures and people, children can develop an attachment to the local community.
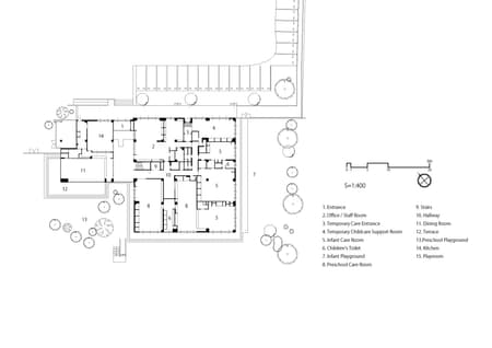
The design of the kindergarten was inspired by their local architecture, Machiya. By reinterpreting traditional elements such as the wooden walls and latticework, one can sense history while enjoying a new understanding of the details. The goal is for children to spend their days in this environment, naturally becoming aware of and familiar with the local characteristics. Children gradually develop a sense of belonging to their hometown.
The kindergarten also addresses various issues surrounding children's diet, such as unbalanced nutrient intake, inadequate breakfasts, and solitary dining. In this kindergarten, children can develop both mentally and physically through multifaceted nutritional education. Architecture supports such education. For instance, the dining room, adjacent to the main entrance, a kitchen, and a vegetable garden with a view incorporate food-related experiences in one's daily life. Children naturally learn the joy and importance of eating by observing the vegetables they grow and immersing themselves in the smells of food being prepared. This kindergarten equips children with a strong foundation for healthy dietary habits through which they grow up healthy both physically and mentally.





















