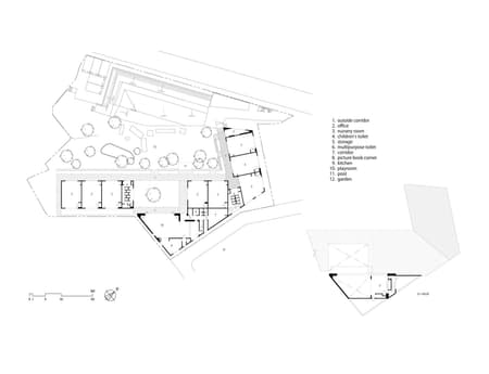
This is a renovation project for an aging kindergarten with a capacity of 240 children located in Moji, Kitakyushu City. The site is situated in a residential area surrounded by the vast sea to the north and magnificent mountains to the south, it is blessed with nature. Particularly, influenced by the nearby "Midori Valley," the kindergarten's playground features a more than 3-meter difference in elevation. The existing site has been cherished by children as an attractive play area with natural playground equipment and abundant trees, serving as a space for symbiosis and learning. While carefully respecting this environment, the design blurs the boundaries between the inside and outside by bringing the external nature into the interior.
All the classrooms are arranged on the ground floor, facing the playground in an L-shaped configuration, allowing children to spend their time while cherishing interaction with nature. The external corridor that connects the playground and classrooms resembles the veranda of a Japanese house, bringing the daily flow of movement semi-outdoors, enabling the children to constantly experience the changes in nature and weather. They can feel the rain falling from the roof and perceive the seasonal transitions brought by the wind. Through such daily experiences, children's sensibilities are refined, and they develop the ability to think and act on their own.
A courtyard is provided in the building, aiming to protect the existing trees that have been watching over the kindergarten since its establishment. Next to the courtyard, a dining area is located, featuring fully openable windows that allow children to enjoy meals while sensing the seasons and the changes in existing trees. By valuing the preservation of the existing trees, children cultivate an understanding of and respect for the environment, fostering an awareness of cherishing nature for a sustainable future.
In recent years, there has been a tendency in early childhood facilities to prioritize excessive safety and comfort. However, this kindergarten emphasizes children's autonomy and provides an environment that allows for free movement, always fostering a connection with nature. Through this approach, this building plays a role in nurturing children's sensibilities and promoting self-directed early childhood education.














