This project, located in a quiet residential area of Chaoyang District, Beijing, China, converts an existing office building into a kindergarten. The surrounding area is rich in cultural facilities, with numerous art museums, galleries, and international schools.
While large-scale kindergartens are common in China, the owner preferred a small group setting that brings high quality education for each and every individual. The limited space is effectively utilized to create an environment where children can develop their sensitivity while feeling a connection to nature and culture.
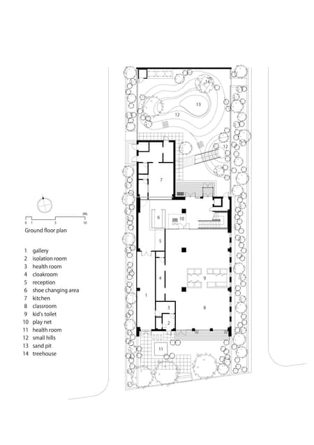
Beijing, also known as "Yanjing," is abundant with birds and nests, inspiring its concept that children will "spread their wings" as they play, learn, feel, and grow in this kindergarten. To actively promote daily vertical movement both indoors and outdoors, an external staircase was built to extend from the first to the third floor. This design makes it possible for children to exercise daily in the limited space available. Additionally, the rooftop terrace on the third floor connects to an attic-like atelier, expanding opportunities for creative activities. On the first and second floors, net playground equipment connects the interior spaces, allowing children to increase their physical activity even during Beijing's harsh winters.
Furthermore, given the area's high level of artistic and cultural elements, the entrance functions as a gallery space where children can routinely interact with art. This space not only displays the works of the children but also invites artistic exchanges with local artists.


























