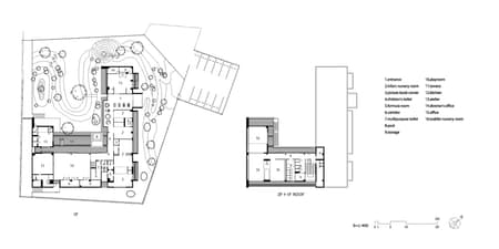
The nursery stands in Ashikita-gun, Kumamoto Prefecture, which has lush green mountains and beautiful coastlines. In response to the flooding of the existing nursery building due to a river overflow caused by heavy rains, we planned a "hilltop nursery to protect children from flooding" by placing soil on the ground and setting the floor level at 2 meters above the ground.
Based on the concept of the characteristic landscape where the sea and mountains intersect, we aimed to create a nursery where the building and the garden intersect, and children can easily get close to nature.
The large, undulating garden encourages children to exercise, and the wide variety of plants stimulates children's curiosity, thus providing disaster preparedness as well as solving childcare issues such as children's lack of physical activity and decreased outdoor play.
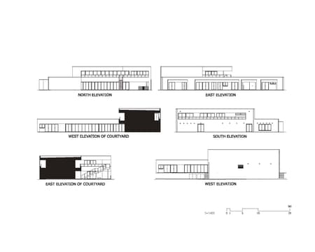
For the interior, theme colors were chosen from the attractive landscape of the region to give each space its own character. To create a comfortable living environment, a portion of the walls and ceilings were made of wood to improve humidity control. The floor is made of comfortable solid wood flooring to enhance the relaxing effect. Furniture was designed to be integrated with the interior design and age to create a unified space.
The U-shaped, wide, exterior-facing floor plan with large openings allows natural light and wind to fully reach deep into the rooms to create a sustainable architecture. A swimming pool on the terrace connecting the inside and outside of the building allows children to play in the water easily and also brings cooled air into the building using the vaporization heat of the water. The landmark-like appearance of the building, which is open to the community, will be rooted in the community and provide a safe place for children to grow up.
















