Henning Larsen's contemporary take on the Danish church opens - the first in Skanderborg in half a millennium. In an era marked by church closures and increasing secularization, the opening of a new church is a striking exception. Designed by Henning Larsen, Højvangen Church reimagines the role of the church in modern society as a space for gathering, reflection, and connection that reaches beyond religious tradition. It is the first new church built in the Skanderborg Parish in more than 500 years.
From Enghøj Church in Randers to the upcoming Ørestad Church in Copenhagen, Henning Larsen has long contributed to the evolving role of church design in Denmark, balancing tradition with new spatial and social ideas. Eva Ravnborg, Director, Henning Larsen, Denmark, explains, "With the new church in Højvangen, we have been true to the theological tradition, while also reinterpreting the church as a place that accommodates both everyday life and celebrations, joy and mourning, across generations. Light was a central design driver for us. It's more than a physical element - it brings a calm, almost spiritual quality to the space, lifting the experience of the church room beyond the everyday."
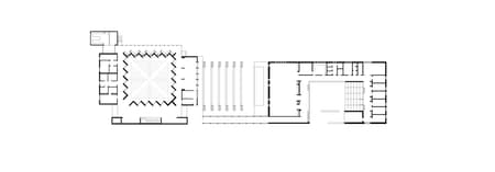
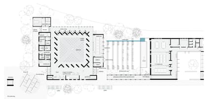
Located on the outskirts of Skanderborg, Denmark, the 1,500 m² building honors Danish architectural heritage while embracing contemporary ideas of community and spirituality. Designed to host religious services, cultural events, and everyday gatherings, the church offers flexible spaces that extend beyond its traditional function. Materials such as brick, oak, and brass create a warm, timeless atmosphere. From the outside, the church appears as a sculpted pavilion set into the landscape, connected to the existing church center by a partially underground corridor. With no formal front or back, the building's only fixed element is its baptismal font, placed at the very center. From here, views open in all directions - to the forest, the cemetery, the old church tower - reinforcing the idea of the church as a civic clearing rather than a directional space.
"Our ambition was to design a space that opens in every direction. This idea challenges the traditional church layout and allows us to create a flexible interior that feels open yet intimate and sacred." Greta Tiedje, Global Design Director, Henning Larsen. Unlike the traditional church layout, this adaptable 'clearing' can accommodate a wide variety of events, made to include everyone. The surrounding walls shift between solid and transparent, forming pockets of privacy that balance openness with intimacy, and community with personal reflection. "A place of worship is a civic anchor," Tiedje continues. "We designed it to be part of the everyday, a space where people can gather across generations and beliefs and find meaning through shared experience. That's where real life happens."
The gently undulating façade invites in shifting natural light throughout the day. Permeable walls filter and shape this light to create a dynamic interplay of shadow and atmosphere, making the architecture itself part of the spiritual experience. Outside, the church invites engagement on al sides. A series of niches built into the colonnaded rear façade offer places for quiet retreat, conversation, or a pause in nature. A landscaped park and courtyard provide additional outdoor space for events and community use.
Furniture design: A return to form - As part of the project, Henning Larsen partnered with Danish furniture maker Brdr. Krüger to design a new stackable church chair. Named Ekko, the chair combines elegance with durability and is certified to the highest EU standard (L2) for extreme use. Ekko marks Henning Larsen's return to furniture design after 60 years.
























