Located in the heart of Perth’s cultural precinct, the Hassell + OMA design was conceived as a ‘collection of stories’, offering a multidimensional framework to engage with Western Australia. A holistic building, comprised of heritage and new structures, the New Museum for Western Australia will be a place where the local community and global visitors gather, to share their understanding of the past, thoughts of the moment, and ambitions for the future.
“Our vision for the design was to create a space that promotes engagement and collaboration, responding to the needs of the Museum and the community,” says Hassell Principal Mark Loughnan. “We wanted it to be a civic place for everyone; an interesting mix of heritage and contemporary architecture, that contributes to the revitalisation of Perth’s cultural precinct whilst celebrating the culture of Western Australia on the world stage,” he says.
OMA Managing Partner – Architect David Gianotten says: “The New Museum is a place to welcome everyone to explore the natural and social heritage of Western Australia. More importantly, it has been deliberately designed as a place for conversations, to inspire new ideas and knowledge of global relevance. It is a museum that both showcases and stimulates discoveries.”
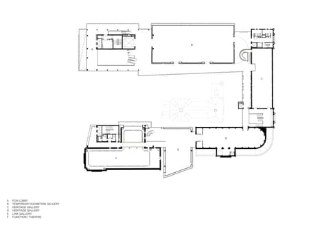
Refurbished heritage buildings and newly built volumes house the Museum exhibitions, event spaces, and public areas. Two intersecting circulation loops—one vertical and one horizontal— connect and organise in multiple ways the Museum’s content, which includes a world-renowned meteorite collection and an iconic blue whale skeleton. “Western Australia’s natural resources, culture, and history are diverse. Instead of prescribing a singular interpretation of Western Australia, the loops enable visitors to engage with the Museum’s collection in distinctive ways, and tell the manifold stories of the place,” says Gianotten.
A core element of the design is the ‘City Room’—a sheltered outdoor public space at the centre of the Museum, framed by the refurbished heritage buildings and a large cantilevered volume. The ‘City Room’ is an open space for everyone to stimulate their imagination and creativity, and participate with a variety of activities, from large scale community events to smaller gatherings. - “The ‘City Room’ is the Museum threshold, inviting everyone to engage with the Museum, the Perth Cultural Centre and each other,” says Loughnan.
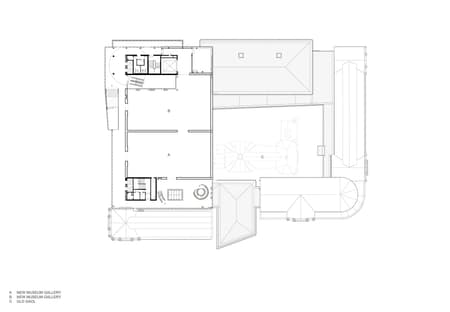
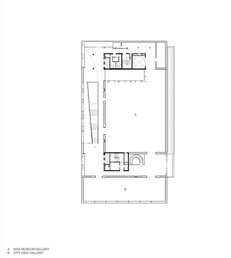
A large new temporary gallery space complements the Museum’s extensive permanent collection and the ‘City Room’. The New Museum will house a diverse range of cultural programs, and new retail and dining opportunities—a Museum that invites regular visits by everyone throughout the year. Peter Dean says: “We are pleased to have created a dynamic dialogue between the old and new fabric, which has set a new benchmark in heritage activation, one that reflects the rich Aboriginal heritage of our State in the new contemporary landscape.”
Paul Jones says: “The fusion of our global perspective and a strong connection to Australia has allowed us to explore a type of architecture with both international and local relevance. The New Museum that gives a multiplicity of possibilities for everyday use is a unique and open response to a place with vast flexibility.”




















