A relentless pursuit of technical excellence, a commitment to pushing boundaries and consistently challenging norms have been the driving forces in engineering firm Arup’s new Sydney Australia, office. In a long-standing collaboration between design and engineering, HASSELL partnered with Arup to create a workplace where the exchange of knowledge and skills through learning and experimentation – central tenets of Arup’s work culture – are not only facilitated but lived by all.
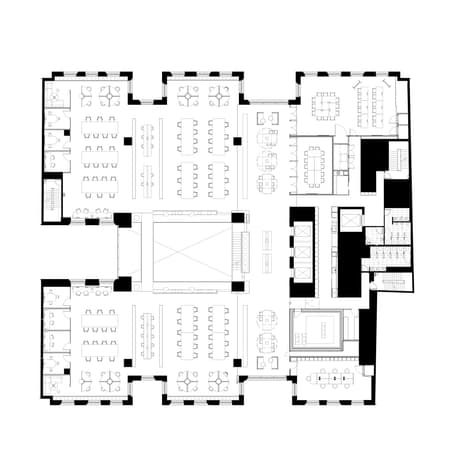
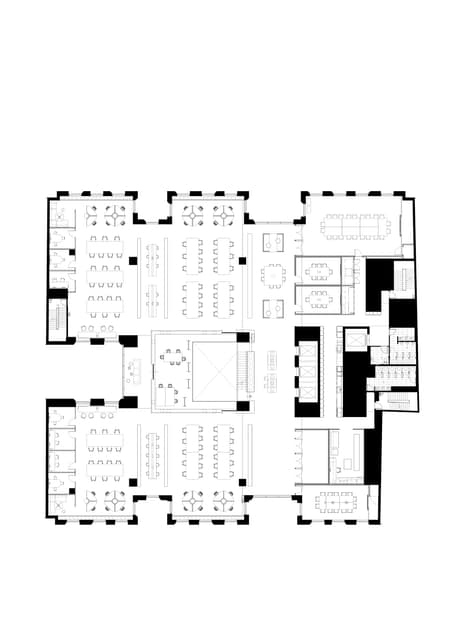
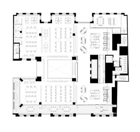
HASSELL was engaged early in the construction planning of Barrack Place in which Arup was both building engineer and future tenant. This presented Arup and HASSELL with the opportunity to influence the building’s architecture and engineering to align with their vision of the workplace interior. The heart of the new workplace is a four-story void connecting all five floors of the tenancy. With striking horizontal and vertical views across and between floors, this centerpiece presents a clear view of Arup’s everyday operations and sense of connection.
Arup’s desire to be open and authentic led to a planning model where exchange spaces are dispersed throughout the tenancy. These spaces sit adjacent to the void on all floors, each with a different focus, where lab spaces, workshops, meeting, and collaboration zones become destinations driving connection and collaboration between Arup’s people, clients and partners. The staircase, connecting exchange areas vertically, is a design and engineering feat – a cast concrete structure floating between floors.
This visual manifestation of Arup’s heritage in ingenuity and honesty in design provides a fast connection between floors and teams, enhancing the activation and energy of the workplace. Spanning the voids on two levels are bridges linking work zones via intermediary collaboration spaces. The bridges not only connect but also reflect on the engineering origins of Arup and demonstrate its expertise in a range of disciplines.



















