An office that is living: grows, adapts, is responsive and is always applicable to the way Arup works, has led the design of the engineering firm’s new Melbourne Australia, office.
In a long-term collaboration between design and engineering, HASSELL partnered with Arup to create a workplace that invites people back, resonates with them, inspires them to reflect on their knowledge and through increased connectivity, promotes the open sharing of ideas. The resulting workplace has created a new paradigm in how teams interact and develop creative approaches to work.
HASSELL was engaged in 2013 to develop – with Arup - the living.arup guidelines that would guide the process of developing, delivering and measuring the success of all Arup workplace projects in Australasia. These guidelines provided a standard and consistent baseline for workplace projects across the region.
The key objective was to define the type of workplace that would enable the business in its evolution by encouraging new attitudes and behaviours where needed, without losing what was valuable. It focused on looking forward to the ideal future state, and defining the type of workplace that supported that vision.
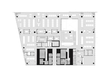
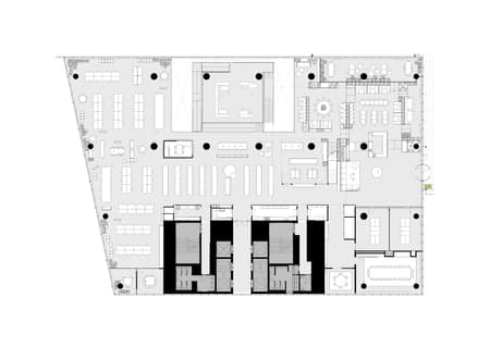
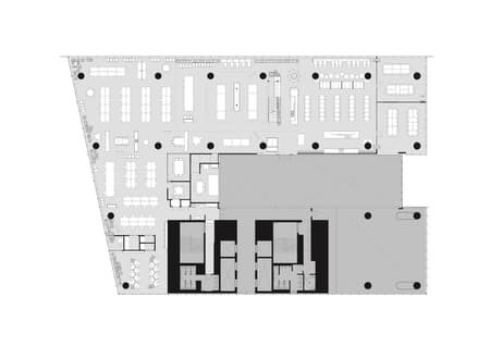
The new workplace centres around two overlapping voids, creating a singular volume instead of three separate levels. Two mezzanines help develop the volumes into a cascading collaboration than that connects all three levels. A wide variety of working typologies including formal and informal meeting areas, design studios, labs, a working kitchen, training rooms, private project rooms and a co-working-style cafe for clients and suppliers allows for continuous sharing of ideas and knowledge.
The new office also includes a sound lab, a light lab, a maker’s space and an experiential lab giving the teams plenty of opportunities to continue learning and developing new approaches.















