The 280-meter-tall Lumina Shanghai, developed by Henderson Land Group and designed by Gensler, is the tallest skyscraper in the Xuhui Riverside District. It joins the West Bund’s skyline as a prominent landmark, overlooking Shanghai’s Qiantan district and echoing the tall buildings of Lujiazui across the bund. “As an iconic tower leading the skyline, Lumina Shanghai's design and development are harmoniously integrated into its surroundings. The tower provides prime office space on the West Bund, as well as a variety of vibrant open spaces for the city.” — Xiaomei Lee, Global Board Director and Regional Managing Principal
According to the original plan, there will be two towers on both the east and west ends of the plot. Gensler has proposed a new scheme that does not alter the original planning conditions. By proposing one holistic tower instead of two, the design team aims to integrate scattered ground level greenery and provide a greater amount of open space in the neighborhood. Additionally, the tower's location is shifted to the center of the site in order to maximize landscape and views. The retail podium was relocated to the east side of the property, providing direct access to the river. As compared to the previous proposal, the new one reduces the tower's visual impact and allows for a gradual transition into the low-rise buildings nearby. To enhance the commercial property value and create a vibrant retail environment, the podium façade extends along the streets with outdoor garden terraces and sophisticated façade details.
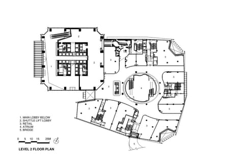
As part of the district's integrated development strategy, Lumina Shanghai is linked to the elevated platform through a pedestrian bridge, providing a third place for socializing and relaxing. There is direct transit access at the project's B1 and B1M level through underground retail streets. Offices and retail pavilions will be easily accessible to tenants and visitors. The double loaded shop frontier not only increases the connection passage, but also enhances the shopping experience. The parking garage is connected to the underground public traffic loop on level B2, reducing traffic on the ground floor.
Lumina Shanghai rises from the ground in a delicate three-dimensional curved form symbolizing beauty and strength. The boldly designed crown marks a new height point for the riverside, representing the new momentum for future development in the area. A people-centric design approach was applied to create a healthier, more productive experience for tenants and visitors. An innovative façade design utilizes textured vertical decorative fins for sun shading while a transparent façade design increases natural light for office tenants. The cross-core layout allows tenants easy access to their workspaces from the lift lobby. The efficient lift arrangement of 10 floors as zones saves visitors' time queuing and waiting for vertical transportation. Highly efficient square floor plates offer geometry that improves space planning and office functionality. The tower plan is rotated during view testing to maximize 360-degree views. The columns-free corners allow for more corner offices and unobstructed views of West Bund Development and Huangpu River.
Designing Resilience for the Future
As part of collaborative strategy, Henderson Land Group, Gensler and consultants propose a holistic approach to sustainability that incorporates architectural design, materials selection, mechanical and electrical systems.
- An innovative façade design utilizes three-dimensional textured vertical decorative fins for sun shading; transparent façade design increases natural light;
- A Low-E IGU façade system provides excellent thermal performance;
- The intelligent lighting system;
- The energy-efficient and energy-recovery air conditioning system and elevator system;
- Rainwater recycling, and solar hot water utilization;
- The built-in standardization approach enhances cost-effectiveness by minimizing the material dimension and reducing construction wastage.
As a result of the various measures described above, the building achieved an energy efficiency rating of 65% and 34% of the building materials were reusable/recycled. The goal of reducing whole life cycle carbon is achieved through the selection and transportation of building materials and the optimization of the construction process. Lumina Shanghai has received LEED Gold pre-certification and China Green Building 3-star certification.

























