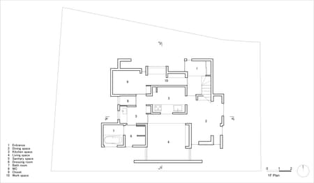
A house for a couple and their two kids in a neighborhood in Kosai, Shizuoka prefecture. The design was driven by a desire to live in a house where each space is small but partially interconnected so residents can sense and imagine the space ahead. The clients also expressed that they did not want to live in a box but in a pitched roof house that could go with a wood carved bear. They preferred a facade that opens onto the street side, and an enclosed but central kitchen where the presence of the whole family can be felt. They also wanted to be able to circulate around the whole house.
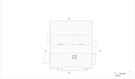
Based on these requests, we designed misalignments in the interior that give dimension to the space and also took advantage of the changes in light throughout the day to create a greater sense of depth. The rooms were conceived as volumes that were stacked and shifted—misalignments are created between the first and second floor volumes, a gap is left between the two, and the dining room protrudes on the exterior facade.
By covering these volumes with a roof and enclosing it with an exterior skin, more gaps emerge between the rooms and the roof, as well as between the rooms and the exterior. As you move, the gaps and the volumes flicker between visible and hidden.
Each space is small but has apertures that connect it to other spaces, letting residents perceive the full space of the house, even when not everything is visible. The misalignments create protrusions in the walls that catch light differently depending on the season and time of day. We hope that the resulting experience of the space is never singular and ever-changing.
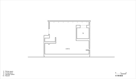
The organization of the home puts the LDK (living, dining, and kitchen area), bathroom, and workspace on the first floor. The dining and living spaces are double-height, and the second floor has a bedroom and two kids’ rooms. The second floor can be perceived from the first, and the transitioning light on the underside of the roof can be sensed from inside the second-floor rooms.























