Mazatlán 160 is a mixed-use building —residential, hospitality, and commercial— located in the Condesa neighborhood of Mexico City. The architectural proposal embraces a contemporary language, building its identity through the honesty of materials and a rigorous proportional logic.
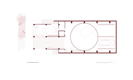
The project achieves coherence through a symmetrical composition, the expressive use of natural finishes, and the clear integration of each architectural component. From the façade, the structure is revealed as a three-dimensional grid measuring 3.40 × 3.40 × 3.40 meters. This modular system is explored through various combinations in both plan and volume, defining and containing the habitable spaces.
Along the two lateral property lines, the building is set back 1.00 meter to accommodate services and circulation —bathrooms and staircases— organizing the layout through the structure and ensuring a continuous dialogue between interior and exterior architecture. This strategy articulates spaces that naturally respond to daylight, the urban context, and the everyday movement of users.
Materials are expressed with authenticity: they expose the structure, reveal the program, and establish a clear distinction between living areas, service cores, and circulation. Exposed finishes engage in a direct dialogue with nature, light, and shadow.
The ground floor houses the commercial program. Above it, two levels are dedicated to hospitality units, while the uppermost floor features a three-bedroom residence with privileged views toward the city.














































































































































