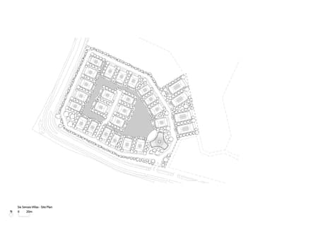
The first phase of the Six Senses Residences The Forestias development by the Thailand-based developer MQDC has been completed. Following the key principles of The Forestias master plan, the luxury villas are inspired by traditional Thai architecture to provide the highest levels of sustainability, well-being, and connections with nature. The development will be serviced by the nearby Six Senses The Forestias Hotel and is designed to align with their pioneering approach to wellness, crafted experiences, and care towards local communities and the environment.
Sunphol Sorakul, Partner, Foster + Partners, said: "The Six Senses Residences The Forestias is a private green haven at the edge of our masterplan. It offers an unparalleled living experience – with access to the very best services and amenities to promote physical and emotional well-being – while providing a strong sense of community. Every villa has been designed to optimize views of the spectacular natural surroundings, with an emphasis on quality materials and highly flexible living spaces that work for the whole family unit."
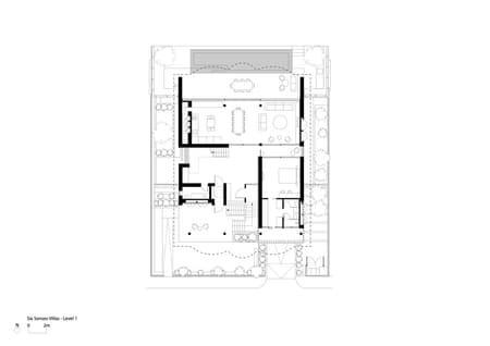
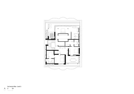
The living quarters are raised off the ground to enhance views of the surroundings, improve natural ventilation throughout the home, and create space for parking and MEP services below. The first level of the villas contains state-of-the-art dining and living spaces, the grandparents' bedroom, and a shaded courtyard where the family can gather at the heart of the home. A private infinity pool on the rear terrace appears to merge with the lagoon at the center of the development, while the rear terraces of the large residences connect with the forest, creating a seamless transition between inside and outside. The level above provides additional bedrooms and generous shaded terraces for socializing, relaxing, or practicing yoga.
The breathable design is driven by an internal system of sliding louvers, which allows air to circulate through the villa and offers maximum flexibility for residents. Living spaces can be opened up, to create larger communal areas, or shut down for more privacy. The facade is carefully designed to balance views of the surroundings and privacy for residents.
Timber screens on the first level are made from regionally sourced bamboo, with aluminum rain screens and stone cladding above. These screens provide shading and gently filter light into the living spaces, while also creating an elegant aesthetic that reflects the local culture and maintains a sense of seclusion. A large undulating aluminum roof – with a timber soffit – draws on natural forms, enhances water drainage, and features PV panels that provide energy to the home. Residents will have access to their clubhouse, with a private health center and a large infinity pool that connects with the lagoon. The gridshell free-span timber structure creates a flexible event space that can accommodate a range of different activities.






















