Narbo Via – a new museum of Roman antiquities in Narbonne – has officially opened following an inauguration ceremony attended by the conseil de la Region Carole Delga. The building, designed and engineered by Foster + Partners is set to become a new landmark at the entrance to the city, on a site adjacent to the Canal de la Robine.
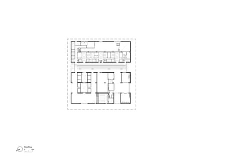
Raised on top of a podium, the museum provides a sense of restrained civic and architectural monumentality at the entrance to the city. The building incorporates galleries for permanent and temporary exhibitions, a multimedia education centre, auditorium, restaurant and bookshop, as well as research, restoration and storage facilities. Externally there are formal gardens and an amphitheatre for outdoor performances.
The centrepiece of the museum is a ‘Lapidary Wall’, which forms a natural boundary at the heart of the museum, separating the public galleries from the more private restoration spaces. Visitors can glimpse the work of the archaeologists and researchers through its mosaic of stone and light. The flexible display framework allows the reliefs to be easily reconfigured and used as an active tool for learning.
The museum spaces are unified beneath a concrete roof canopy, which provides thermal mass and contributes to a comprehensive environmental strategy. The canopy is elevated above a clerestory, punctuated with light wells, and it extends to provide a canopy over the walkways around the museum. As part of its sustainable environmental agenda, inspired by Roman technology, the majority of the services in the building are contained within a subterranean void. The cool air is pushed out at a low level and at low velocity, allowing a smaller volume of air to be conditioned, while maintaining a comfortable environment. The large spatial volumes formed by the high ceilings create a thermal flywheel effect that naturally pushes warm air upwards, from where it is exhausted.







































