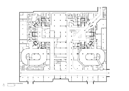
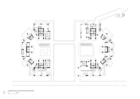
The first tenants have moved into Grand Bayview Qianhai, a new building typology that is aimed specifically at professionals who have an intensive work-centered lifestyle. Designed by Foster + Partners, the two connected towers are arranged in a fan shape to optimize views and daylight, maximize privacy on the outer radius, and provide focused communal areas at the centre of the scheme.
Luke Fox, Head of Studio, Foster + Partners, said: "Our design responds to the unique needs of the tenants by carefully balancing privacy and exclusivity with a sense of community in a relaxed environment. The towers deliver shared terraces on every floor and offer spectacular views, while providing natural ventilation and controlled daylight. Lush greenery flows across the ground plane and through both towers – allowing occupants to reconnect with nature and find balance at the end of the working day."
Rising to 180 meters, the two apartment buildings are linked by a large semi-public garden that connects with adjacent greenbelts, extending the experience of the development at ground level. A deck on level two seamlessly connects with the elevated walkway network of Guiwan, providing a transitional space between neighboring sites and creating a green urban oasis for the public to enjoy.
As residents travel up through the buildings, green terraces provide shared communal spaces for relaxation across all levels. Soft planting on the terraces creates a calm and atmospheric sense of arrival, as residents step out from the lifts.
Perry Ip, Partner, Foster + Partners, added: "Health, wellbeing, and community are the cornerstones of this unique project that will completely redefine the experience of city living."


















