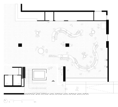
The work of Japanese artist Tasuya Tanaka is a miniature universe, where every detail comes to life. His tiny sculptures stand out under the domes arranged on two curved counters that capture the gaze and allow visitors to circulate each piece. The pieces rest on rotating bases, keeping them in continuous motion. Static points of illumination create a constant transformation in the shadows of the sculptures, suggesting to the visitor a pause to contemplate the complete three-dimensionality of each work from different perspectives.
Some larger pieces receive individual displays, providing a special focus for the most imposing works. And, making the visit even more interactive, the pieces can be viewed from different heights, thanks to the curved benches that intertwine with the counters.
In addition to the fluidity of the space, the simplicity of the design of the displays was the starting point. They are slender, with thin white lines, created not to compete with Tanaka's detailed and colorful sculptures.





























