In this complete renovation project, a 60m² apartment breathes new life, revealing a narrative that delicately blends past and present through architectural finesse.
The property, long held by the family, welcomed the newlywed parents as they took their first steps into life together. It was also a home for discoveries and studies, as the daughter lived there during her college years in fashion and the beginning of her adult life.
Now, mature and a luxury e-commerce manager with her life divided between countries, she maintains her point of origin — reconfigured and updated with new intentions, experiences, and references.
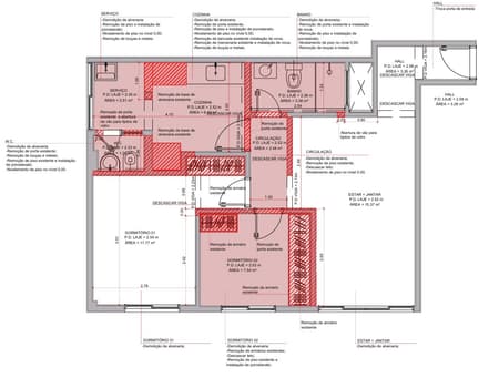
The transformation is profound. The old configuration with two bedrooms gives way to a fluid layout, where the social area, kitchen, and home office intertwine in a single living space. The new suite and powder room complete this bold restructuring, marked by exposed concrete structures that reveal the scars and strength of the renovation.
Designed to embrace natural light and freedom of movement, the project bets on total integration. The aesthetic, although contemporary, remains open to time: it leaves space for objects, affections, and memories to find their place, little by little. A home that matures alongside its resident, without haste — only with purpose.


















