Pirules House is one of six houses located on the edge of Valle del Maíz, one of the oldest neighborhoods in San Miguel de Allende (Mexico). The site has a steep topography and is populated by predominantly native trees and vegetation—mainly pepper trees, huizaches, mesquites and nopales.
The neighborhood retains the original layout of its urban structure, with streets running parallel to the contour lines and plots that slope longitudinally down following the natural incline of the land. This traditional organization responded to hydraulic and agricultural criteria that allowed for the use of runoff for irrigation.
In contrast to the new gated communities that characterize the city's recent growth, the design seeks to integrate with the pre-existing dynamics of Valle del Maíz. The houses maintain the scale and proportion of the neighboring plots, ensuring that each one retains a direct connection to the street and establishes a respectful dialogue with the morphology, vegetation, and identity of the surroundings.
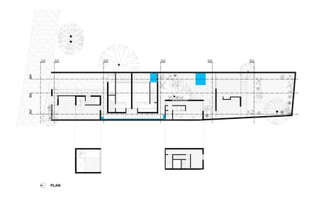
Each house comprises four volumes that accommodate the architectural program. From the street to the back, the spatial sequence is organized as follows: the shop volume, followed by the bedroom volume, the kitchen and service volume, and finally the living-dining room volume. In all six houses, the volumes maintain the same dimensions and proportions; what varies is their location within each lot, adapting to the position of the existing trees.
Circulation between volumes is articulated through patios, porticoes, staircases, and gardens that are revealed along the way. Changes in height, varying light intensities, water features, and vegetation define the diverse interior and exterior environments of the house.
Brick was chosen as the ideal material for the walls, as it allows for modulating heights and platform levels using the brick as the standard unit. Furthermore, it is a local and economical material, widely used in the Bajío region, in central Mexico. The exterior walls of each pavilion are designed to be more robust, fulfilling structural and technical functions: housing facilities, providing acoustic and thermal insulation, and protecting the interior spaces from external conditions.















.jpg?w=450&q=75&dpl=dpl_6NKhQbYoNKZ4YGsW1tKTDHjTc7uH)

















